Cumberland County
Building Summary

Data last updated on: 1/29/2026     Ownership current as of: 1/20/2026     Tax Year: 2026
REID 0416826469000

PIN # 0416-82-6469

Location Address Property Description
3709 MADISON AVE BORDEAUX LO:7 SE:10 BL:N PL:0025-0051
   
Property Owner Owner's Mailing Address
WALTERS, OKA
602 SIXTH ST
FAYETTEVILLE NC 28300
Parcel
Buildings
Misc Improvements
Land
Deeds
Documents
Notes
Sales
Sales Comparison
Photos
Building Location Address
3709 MADISON AVE
Building Description
R1-SINGLE-FAMILY-RES
Card   of  1
Bldg Type R1-SINGLE-FAMILY-RES
Units 0
Living Area (SQFT) 1430
Number of Stories 1.00
Style 000002-STYLE
Foundation G-PIERS-W/CNTFWL
Frame CONSTANT
Exterior 11-BRICK-VENEER
Const Type
Heating M-07&S-01
Air Cond AC-Y
Plumbing Baths (Full):   2
Baths (Half):   0
Extra Fixtures:   0
Total Plumbing Fixtures:   6 
Bedrooms 3
Floor 11-CARPET-COMB
Roof Cover 03-COMP SHINGLE
Roof Type 02-GABLE
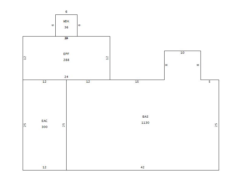
Main Body (SQFT) 1130
Year Built 1963
Additions 3
Effective Year 1970
Remodeled 0
Interior Adj.
Other Features
Building Total & Improvement Details

Grade 350 100%
Percentage Complete 100
Total Adjusted Replacement Cost New $168,809
Physical Depreciation (% Bad) A 35%
Depreciated Value $109,726
Economic Depreciation (% Bad) 0
Functional Depreciation (% Bad) 0
Total Depreciated Value $109,726
Market Area Factor 1.00
Building Value $109,726
Misc Improvements Value $4,547
Total Improvement Value $114,273

Assessed Land Value $34,000
   
Assessed Total Value $212,100



Addition Summary 
StoryTypeCodeArea
1.00 ENCL PORCH FIN EPF 288
1.00 ENCL AREA AVER EAC 300
1.00 WOOD DECK WDK 36
 
Other Improvements 
UnitsDescriptionItemCodeYear% BadValue
5x5 DIMENSIONS STOOP 1983 65 136
22x24 DIMENSIONS FRAME GARAGE 1983 65 5361
 


Building Sketch
Photograph
Building Sketch Building Photo
(Click sketch for bigger image)