Cumberland County
Building Summary

Data last updated on: 1/29/2026     Ownership current as of: 1/20/2026     Tax Year: 2026
REID 0416828899000

PIN # 0416-82-8899

Location Address Property Description
1945 WAYNE LN BORDEAUX LO:12 SE:10 BL:H PL:0025-0051
   
Property Owner Owner's Mailing Address
GAGNARD, JOSEPH S;GAGNARD, KELLY S
1945 WAYNE LN
FAYETTEVILLE NC 28304
Parcel
Buildings
Misc Improvements
Land
Deeds
Documents
Notes
Sales
Sales Comparison
Photos
Building Location Address
1945 WAYNE LN
Building Description
R1-SINGLE-FAMILY-RES
Card   of  1
Bldg Type R1-SINGLE-FAMILY-RES
Units 0
Living Area (SQFT) 1473
Number of Stories 1.00
Style 000002-STYLE
Foundation G-PIERS-W/CNTFWL
Frame CONSTANT
Exterior 11-BRICK-VENEER
Const Type
Heating M-07&S-01
Air Cond AC-Y
Plumbing Baths (Full):   1
Baths (Half):   1
Extra Fixtures:   0
Total Plumbing Fixtures:   5 
Bedrooms 3
Floor 11-CARPET-COMB
Roof Cover 03-COMP SHINGLE
Roof Type 02-GABLE
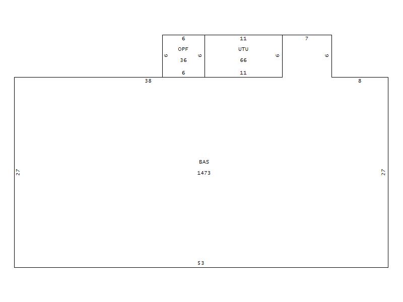
Main Body (SQFT) 1473
Year Built 1962
Additions 2
Effective Year 1962
Remodeled 0
Interior Adj.
Other Features
Building Total & Improvement Details

Grade 350 100%
Percentage Complete 100
Total Adjusted Replacement Cost New $169,544
Physical Depreciation (% Bad) A 38%
Depreciated Value $105,117
Economic Depreciation (% Bad) 0
Functional Depreciation (% Bad) 0
Total Depreciated Value $105,117
Market Area Factor 1.00
Building Value $105,117
Misc Improvements Value $4,138
Total Improvement Value $109,255

Assessed Land Value $34,000
   
Assessed Total Value $185,800



Addition Summary 
StoryTypeCodeArea
1.00 UTILITY UNFIN UTU 66
1.00 OPEN PORCH FIN OPF 36
 
Other Improvements 
UnitsDescriptionItemCodeYear% BadValue
5x6 DIMENSIONS STOOP 1983 65 163
24x24 DIMENSIONS CONCRETE PATIO 1983 65 1546
18x12 DIMENSIONS UTILITY FRAME 1998 65 2429
 


Building Sketch
Photograph
Building Sketch Building Photo
(Click sketch for bigger image)