Cumberland County
Building Summary

Data last updated on: 1/29/2026     Ownership current as of: 1/20/2026     Tax Year: 2026
REID 0416845240000

PIN # 0416-84-5240

Location Address Property Description
1833 WAYNE LN BORDEAUX LO:11 SE:09 BL:E PL:0023-0032
   
Property Owner Owner's Mailing Address
ARVIZU, VERONICA RENTERIA;PEREZ, FRANCISCO RENTERIA
1833 WAYNE LANE
FAYETTEVILLE NC 28304

Value subject to change, property assessment under review

Parcel
Buildings
Misc Improvements
Land
Deeds
Documents
Notes
Sales
Photos
Building Location Address
1833 WAYNE LN
Building Description
R1-SINGLE-FAMILY-RES
Card   of  1
Bldg Type R1-SINGLE-FAMILY-RES
Units 0
Living Area (SQFT) 1316
Number of Stories 1.00
Style 000002-STYLE
Foundation G-PIERS-W/CNTFWL
Frame CONSTANT
Exterior 04-VINYL-SIDING
Const Type
Heating M-07&S-01
Air Cond AC-Y
Plumbing Baths (Full):   1
Baths (Half):   1
Extra Fixtures:   0
Total Plumbing Fixtures:   5 
Bedrooms 3
Floor 09-HARDWD-PARQUE
Roof Cover 03-COMP SHINGLE
Roof Type 02-GABLE
Main Body (SQFT) 1316
Year Built 1962
Additions 1
Effective Year 1962
Remodeled 0
Interior Adj.
Other Features
Building Total & Improvement Details

Grade 350 100%
Percentage Complete 100
Total Adjusted Replacement Cost New
Physical Depreciation (% Bad) A 38%
Depreciated Value
Economic Depreciation (% Bad) 0
Functional Depreciation (% Bad) 0
Total Depreciated Value
Market Area Factor 1.00
Building Value
Misc Improvements Value
Total Improvement Value

Assessed Land Value
   
Assessed Total Value



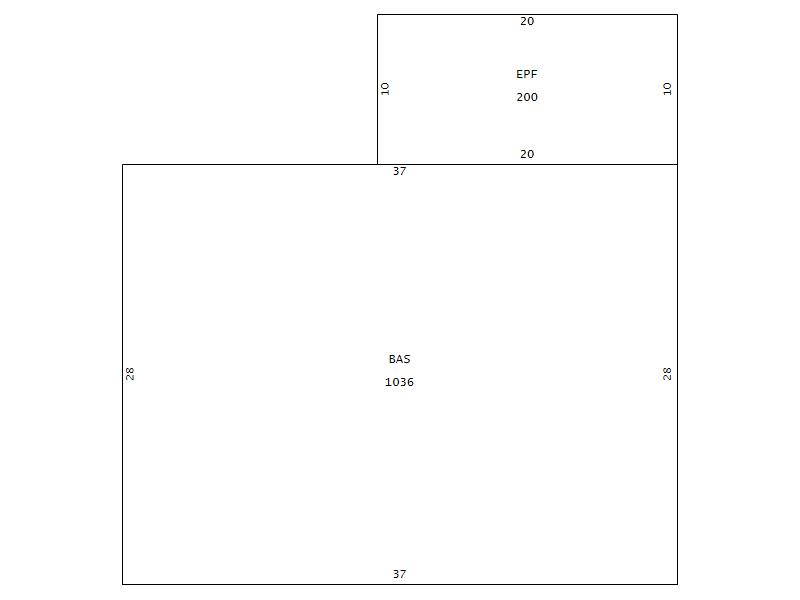
Addition Summary 
StoryTypeCodeArea
1.00 ENCL PORCH FIN EPF 200
 
Other Improvements 
UnitsDescriptionItemCodeYear% BadValue
6x4 DIMENSIONS STOOP 1983 65
 


Building Sketch
Photograph
Building Sketch Building Photo
(Click sketch for bigger image)