Cumberland County
Building Summary

Data last updated on: 1/29/2026     Ownership current as of: 1/20/2026     Tax Year: 2026
REID 0416929579000

PIN # 0416-92-9579

Location Address Property Description
3431 BOONE TRL BORDEAUX LO:17 SE:05 BL:E PL:0018-0061
   
Property Owner Owner's Mailing Address
SLACK, CALEB JAMES;SLACK, ELIZABETTE
3431 BOONE TRAIL
FAYETTEVILLE NC 28306
Parcel
Buildings
Misc Improvements
Land
Deeds
Documents
Notes
Sales
Sales Comparison
Photos
Building Location Address
3431 BOONE TRL
Building Description
R1-SINGLE-FAMILY-RES
Card   of  1
Bldg Type R1-SINGLE-FAMILY-RES
Units 0
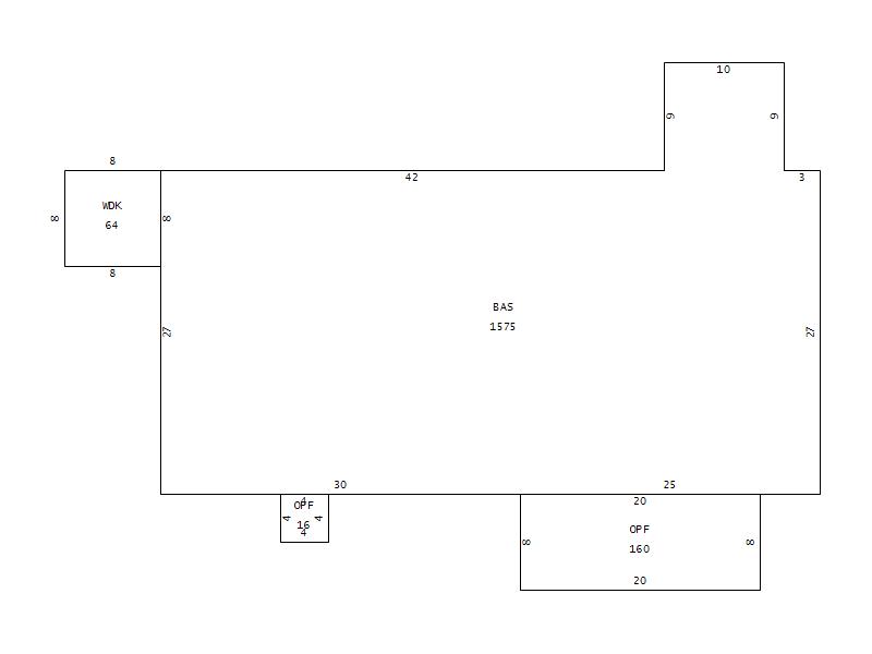
Living Area (SQFT) 1575
Number of Stories 1.00
Style 000002-STYLE
Foundation G-PIERS-W/CNTFWL
Frame CONSTANT
Exterior 11-BRICK-VENEER
Const Type
Heating M-07&S-01
Air Cond AC-Y
Plumbing Baths (Full):   2
Baths (Half):   0
Extra Fixtures:   1
Total Plumbing Fixtures:   7 
Bedrooms 3
Roof Cover 03-COMP SHINGLE
Roof Type 02-GABLE
Main Body (SQFT) 1575
Year Built 1958
Additions 3
Effective Year 1978
Remodeled 0
Interior Adj.
Other Features
Building Total & Improvement Details

Grade 350 100%
Percentage Complete 100
Total Adjusted Replacement Cost New $183,636
Physical Depreciation (% Bad) A 31%
Depreciated Value $126,709
Economic Depreciation (% Bad) 0
Functional Depreciation (% Bad) 0
Total Depreciated Value $126,709
Market Area Factor 1.00
Building Value $126,709
Misc Improvements Value $2,588
Total Improvement Value $129,297

Assessed Land Value $34,000
   
Assessed Total Value $216,600



Addition Summary 
StoryTypeCodeArea
1.00 OPEN PORCH FIN OPF 160
1.00 OPEN PORCH FIN OPF 16
1.00 WOOD DECK WDK 64
 
Other Improvements 
UnitsDescriptionItemCodeYear% BadValue
4x5 DIMENSIONS STOOP 1983 65 85
12x15 DIMENSIONS MASONRY UTIL 1983 75 1571
18x27 DIMENSIONS CONCRETE PATIO 1983 75 932
 


Building Sketch
Photograph
Building Sketch Building Photo
(Click sketch for bigger image)