Cumberland County
Building Summary

Data last updated on: 1/29/2026     Ownership current as of: 1/20/2026     Tax Year: 2026
REID 0416930664000

PIN # 0416-93-0664

Location Address Property Description
1909 ROXIE AVE BORDEAUX LO:28 SE:10 BL:L PL:0025-0051
   
Property Owner Owner's Mailing Address
NORMAN, STEVE
1909 ROXIE AVE
FAYETTEVILLE NC 28304
Parcel
Buildings
Misc Improvements
Land
Deeds
Documents
Notes
Sales
Sales Comparison
Photos
Building Location Address
1909 ROXIE AVE
Building Description
R1-SINGLE-FAMILY-RES
Card   of  1
Bldg Type R1-SINGLE-FAMILY-RES
Units 0
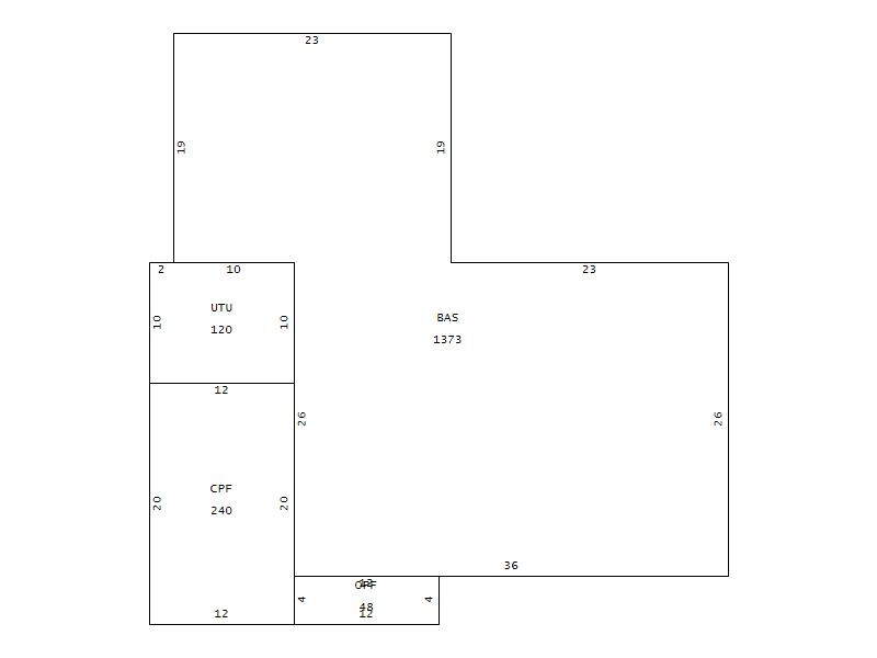
Living Area (SQFT) 1373
Number of Stories 1.00
Style 000002-STYLE
Foundation G-PIERS-W/CNTFWL
Frame CONSTANT
Exterior 11-BRICK-VENEER
Const Type
Heating M-07&S-01
Air Cond AC-Y
Plumbing Baths (Full):   1
Baths (Half):   1
Extra Fixtures:   0
Total Plumbing Fixtures:   5 
Bedrooms 3
Floor 09-HARDWD-PARQUE
Roof Cover 03-COMP SHINGLE
Roof Type 02-GABLE
Main Body (SQFT) 1373
Year Built 1963
Additions 3
Effective Year 1963
Remodeled 0
Interior Adj.
Other Features
Building Total & Improvement Details

Grade 350 100%
Percentage Complete 100
Total Adjusted Replacement Cost New $167,446
Physical Depreciation (% Bad) A 38%
Depreciated Value $103,817
Economic Depreciation (% Bad) 0
Functional Depreciation (% Bad) 0
Total Depreciated Value $103,817
Market Area Factor 1.00
Building Value $103,817
Misc Improvements Value $1,053
Total Improvement Value $104,870

Assessed Land Value $34,000
   
Assessed Total Value $179,800



Addition Summary 
StoryTypeCodeArea
1.00 UTILITY UNFIN UTU 120
1.00 CARPORT FINISH CPF 240
1.00 OPEN PORCH FIN OPF 48
 
Other Improvements 
UnitsDescriptionItemCodeYear% BadValue
12x10 DIMENSIONS UTILITY FRAME 1988 65 1053
 


Building Sketch
Photograph
Building Sketch Building Photo
(Click sketch for bigger image)