Cumberland County
Building Summary

Data last updated on: 1/29/2026     Ownership current as of: 1/20/2026     Tax Year: 2026
REID 0416931360000

PIN # 0416-93-1360

Location Address Property Description
1925 ROXIE AVE BORDEAUX LO:24 SE:10 BL:L PL:0025-0051
   
Property Owner Owner's Mailing Address
ZIMMERMAN, CYNTHIA
1925 ROXIE AVE
FAYETTEVILLE NC 28304
Parcel
Buildings
Misc Improvements
Land
Deeds
Documents
Notes
Sales
Sales Comparison
Photos
Building Location Address
1925 ROXIE AVE
Building Description
R1-SINGLE-FAMILY-RES
Card   of  1
Bldg Type R1-SINGLE-FAMILY-RES
Units 0
Living Area (SQFT) 1592
Number of Stories 1.00
Style 000002-STYLE
Foundation G-PIERS-W/CNTFWL
Frame CONSTANT
Exterior 11-BRICK-VENEER
Const Type
Heating M-07&S-01
Air Cond AC-Y
Plumbing Baths (Full):   2
Baths (Half):   0
Extra Fixtures:   0
Total Plumbing Fixtures:   6 
Bedrooms 3
Floor 09-HARDWD-PARQUE
Roof Cover 03-COMP SHINGLE
Roof Type 02-GABLE
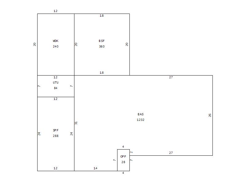
Main Body (SQFT) 1232
Year Built 1963
Additions 5
Effective Year 1973
Remodeled 0
Interior Adj.
Other Features
Building Total & Improvement Details

Grade 350 100%
Percentage Complete 100
Total Adjusted Replacement Cost New $198,555
Physical Depreciation (% Bad) A 33%
Depreciated Value $133,032
Economic Depreciation (% Bad) 0
Functional Depreciation (% Bad) 0
Total Depreciated Value $133,032
Market Area Factor 1.00
Building Value $133,032
Misc Improvements Value $163
Total Improvement Value $133,195

Assessed Land Value $34,000
   
Assessed Total Value $198,200



Addition Summary 
StoryTypeCodeArea
1.00 BASE SEMI FIN BSF 360
1.00 UTILITY UNFIN UTU 84
1.00 SCREEN PORCH F SPF 288
1.00 OPEN PORCH FIN OPF 28
1.00 WOOD DECK WDK 240
 
Other Improvements 
UnitsDescriptionItemCodeYear% BadValue
5x6 DIMENSIONS STOOP 1983 65 163
 


Building Sketch
Photograph
Building Sketch Building Photo
(Click sketch for bigger image)