Cumberland County
Building Summary

Data last updated on: 1/29/2026     Ownership current as of: 1/20/2026     Tax Year: 2026
REID 0416945233000

PIN # 0416-94-5233

Location Address Property Description
1901 FABER ST BORDEAUX LO:28 SE:8 BL:F PL:0024-0059
   
Property Owner Owner's Mailing Address
VALENTIN, WENDELL JOEL;VARGAS, ALEXABETH NAZARIO
1901 FABER ST
FAYETTEVILLE NC 28304
Parcel
Buildings
Misc Improvements
Land
Deeds
Documents
Notes
Sales
Sales Comparison
Photos
Building Location Address
1901 FABER ST
Building Description
R1-SINGLE-FAMILY-RES
Card   of  1
Bldg Type R1-SINGLE-FAMILY-RES
Units 0
Living Area (SQFT) 1509
Number of Stories 1.00
Style 000002-STYLE
Foundation G-PIERS-W/CNTFWL
Frame CONSTANT
Exterior 11-BRICK-VENEER
Const Type
Heating M-07&S-01
Air Cond AC-Y
Plumbing Baths (Full):   1
Baths (Half):   2
Extra Fixtures:   0
Total Plumbing Fixtures:   7 
Bedrooms 3
Floor 09-HARDWD-PARQUE
Roof Cover 03-COMP SHINGLE
Roof Type 02-GABLE
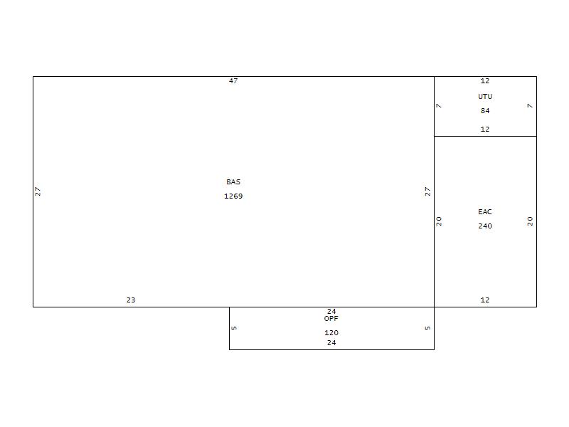
Main Body (SQFT) 1509
Year Built 1963
Additions 3
Effective Year 1963
Remodeled 0
Interior Adj.
Other Features
Building Total & Improvement Details

Grade 350 100%
Percentage Complete 100
Total Adjusted Replacement Cost New $184,119
Physical Depreciation (% Bad) A 38%
Depreciated Value $114,154
Economic Depreciation (% Bad) 0
Functional Depreciation (% Bad) 0
Total Depreciated Value $114,154
Market Area Factor 1.00
Building Value $114,154
Misc Improvements Value $1,682
Total Improvement Value $115,836

Assessed Land Value $34,000
   
Assessed Total Value $215,100



Addition Summary 
StoryTypeCodeArea
1.00 OPEN PORCH FIN OPF 120
1.00 UTILITY UNFIN UTU 84
1.00 WOOD DECK WDK 340
 
Other Improvements 
UnitsDescriptionItemCodeYear% BadValue
8x10 DIMENSIONS UTILITY METAL 1983 85 61
14x20 DIMENSIONS UTILITY METAL 2000 65 317
10x12 DIMENSIONS SHELTER 2000 65 162
10x12 DIMENSIONS SHELTER 2000 65 162
14X10 DIMENSIONS SHELTER 1983 85 162
13X12 DIMENSIONS DECK WOOD 1983 85 572
6X12 DIMENSIONS OPEN POR UNFIN 1983 85 246
 


Building Sketch
Photograph
Building Sketch Building Photo
(Click sketch for bigger image)