Cumberland County
Building Summary

Data last updated on: 1/29/2026     Ownership current as of: 1/20/2026     Tax Year: 2026
REID 0416947880000

PIN # 0416-94-7880

Location Address Property Description
1828 FARGO DR BORDEAUX LO:8 SE:4-PT2 PL:0022-0052
   
Property Owner Owner's Mailing Address
ABOAMSHE, RENEE
1828 FARGO DRIVE
FAYETTEVILLE NC 28304
Parcel
Buildings
Misc Improvements
Land
Deeds
Documents
Notes
Sales
Sales Comparison
Photos
Building Location Address
1828 FARGO DR
Building Description
R1-SINGLE-FAMILY-RES
Card   of  1
Bldg Type R1-SINGLE-FAMILY-RES
Units 0
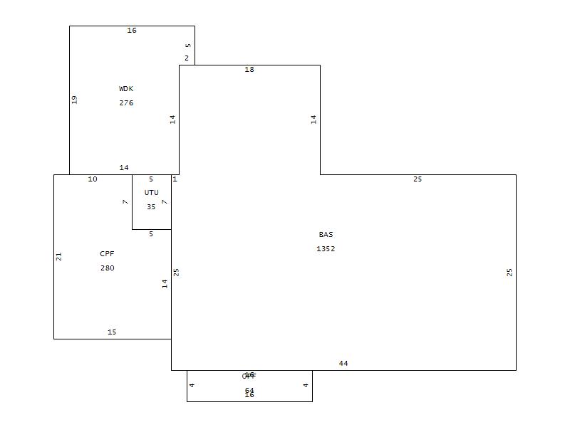
Living Area (SQFT) 1352
Number of Stories 1.00
Style 000002-STYLE
Foundation G-PIERS-W/CNTFWL
Frame CONSTANT
Exterior 11-BRICK-VENEER
Const Type
Heating M-07&S-03
Air Cond AC-Y
Plumbing Baths (Full):   1
Baths (Half):   1
Extra Fixtures:   0
Total Plumbing Fixtures:   5 
Bedrooms 3
Floor 09-HARDWD-PARQUE
Roof Cover 03-COMP SHINGLE
Roof Type 02-GABLE
Main Body (SQFT) 1352
Year Built 1959
Additions 4
Effective Year 1970
Remodeled 0
Interior Adj.
Other Features
Building Total & Improvement Details

Grade 350 100%
Percentage Complete 100
Total Adjusted Replacement Cost New $171,644
Physical Depreciation (% Bad) A 35%
Depreciated Value $111,569
Economic Depreciation (% Bad) 0
Functional Depreciation (% Bad) 0
Total Depreciated Value $111,569
Market Area Factor 1.00
Building Value $111,569
Misc Improvements Value $1,386
Total Improvement Value $112,955

Assessed Land Value $34,000
   
Assessed Total Value $186,700



Addition Summary 
StoryTypeCodeArea
1.00 WOOD DECK WDK 276
1.00 UTILITY UNFIN UTU 35
1.00 CARPORT FINISH CPF 280
1.00 OPEN PORCH FIN OPF 64
 
Other Improvements 
UnitsDescriptionItemCodeYear% BadValue
12x24 DIMENSIONS UTILITY METAL 1983 65 509
10x10 DIMENSIONS UTILITY FRAME 1996 65 877
 


Building Sketch
Photograph
Building Sketch Building Photo
(Click sketch for bigger image)