Cumberland County
Building Summary

Data last updated on: 1/24/2026     Ownership current as of: 1/20/2026     Tax Year: 2026
REID 0417359905000

PIN # 0417-35-9905

Location Address Property Description
4632 WEAVERHALL DR BUCKHEAD LO:248 SE:6-PT2 PL:0103-0045
   
Property Owner Owner's Mailing Address
LE, VINH;LE, THU-HANG
4632 WEAVERHALL DRIVE
FAYETTEVILLE NC 28314
Parcel
Buildings
Misc Improvements
Land
Deeds
Documents
Notes
Sales
Sales Comparison
Photos
Building Location Address
4632 WEAVERHALL DR
Building Description
R1-SINGLE-FAMILY-RES
Card   of  1
Bldg Type R1-SINGLE-FAMILY-RES
Units 0
Living Area (SQFT) 3496
Number of Stories 1.00
Style 000002-STYLE
Foundation G-PIERS-W/CNTFWL
Frame CONSTANT
Exterior 11-BRICK-VENEER
Const Type
Heating M-07&S-02
Air Cond AC-Y
Plumbing Baths (Full):   4
Baths (Half):   0
Extra Fixtures:   3
Total Plumbing Fixtures:   15 
Bedrooms 4
Roof Cover 03-COMP SHINGLE
Roof Type 02-GABLE
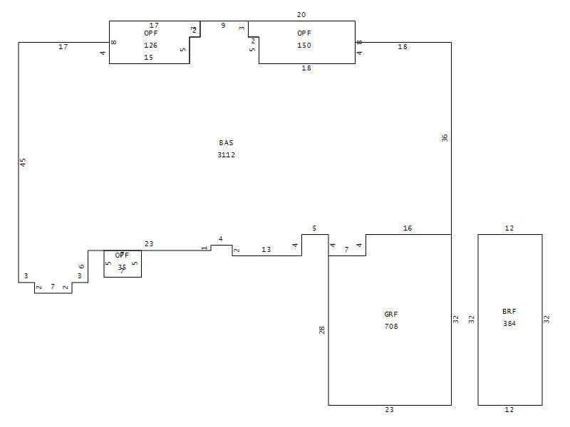
Main Body (SQFT) 3112
Year Built 2004
Additions 5
Effective Year 2004
Remodeled 0
Interior Adj.
Other Features
Building Total & Improvement Details

Grade 450 126%
Percentage Complete 100
Total Adjusted Replacement Cost New $488,933
Physical Depreciation (% Bad) A 15%
Depreciated Value $415,593
Economic Depreciation (% Bad) 0
Functional Depreciation (% Bad) 0
Total Depreciated Value $415,593
Market Area Factor 1.00
Building Value $415,593
Misc Improvements Value
Total Improvement Value $415,593

Assessed Land Value $91,200
   
Assessed Total Value $523,500



Addition Summary 
StoryTypeCodeArea
1.00 OPEN PORCH FIN OPF 150
1.00 OPEN PORCH FIN OPF 126
1.00 OPEN PORCH FIN OPF 35
1.00 GARAGE FINISH GRF 708
1.00 BONUS RM FINIS BRF 384
 
Other Improvements 
 


Building Sketch
Photograph
Building Sketch Building Photo
(Click sketch for bigger image)