Cumberland County
Building Summary

Data last updated on: 11/11/2025     Ownership current as of: 10/31/2025     Tax Year: 2025
REID 0417789679000

PIN # 0417-78-9679

Location Address Property Description
3005 RATHBURN CT .52 AC
   
Property Owner Owner's Mailing Address
DAVIS, ALBERT WADE;DAVIS, KRISTEN CLAIRE
3005 RATHBURN COURT
FAYETTEVILLE NC 28303
Parcel
Buildings
Misc Improvements
Land
Deeds
Documents
Notes
Sales
Sales Comparison
Photos
Building Location Address
3005 RATHBURN CT
Building Description
R1-SINGLE-FAMILY-RES
Card   of  1
Bldg Type R1-SINGLE-FAMILY-RES
Units 0
Living Area (SQFT) 3649
Number of Stories 1.50
Style 000002-STYLE
Foundation D-CNTFTG-SLBONGD
Frame CONSTANT
Exterior 11-BRICK-VENEER
Const Type
Heating M-07&S-02
Air Cond AC-Y
Plumbing Baths (Full):   3
Baths (Half):   1
Extra Fixtures:   1
Total Plumbing Fixtures:   12 
Bedrooms 5
Floor 11-CARPET-COMB
Roof Cover 03-COMP SHINGLE
Roof Type 02-GABLE
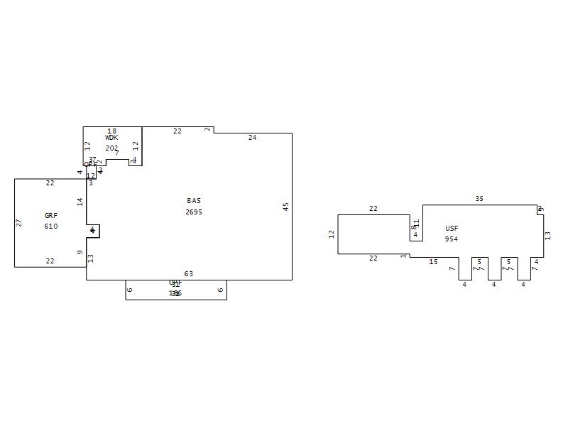
Main Body (SQFT) 2695
Year Built 1987
Additions 5
Effective Year 1987
Remodeled 0
Interior Adj.
Other Features
Building Total & Improvement Details

Grade 535 145%
Percentage Complete 100
Total Adjusted Replacement Cost New $583,556
Physical Depreciation (% Bad) A 22%
Depreciated Value $455,174
Economic Depreciation (% Bad) 0
Functional Depreciation (% Bad) 0
Total Depreciated Value $455,174
Market Area Factor 1.00
Building Value $455,174
Misc Improvements Value $907
Total Improvement Value $456,081

Assessed Land Value $143,925
   
Assessed Total Value $602,500



Addition Summary 
StoryTypeCodeArea
1.00 WOOD DECK WDK 202
1.00 OPEN PORCH FIN OPF 12
1.00 GARAGE FINISH GRF 610
1.00 OPEN PORCH FIN OPF 186
1.00 UPPER STY FIN USF 954
 
Other Improvements 
UnitsDescriptionItemCodeYear% BadValue
8x8 DIMENSIONS UTILITY FRAME 1987 65 907
 


Building Sketch
Photograph
Building Sketch Building Photo
(Click sketch for bigger image)