Cumberland County
Building Summary

Data last updated on: 11/11/2025     Ownership current as of: 10/31/2025     Tax Year: 2025
REID 0417798626000

PIN # 0417-79-8626

Location Address Property Description
184 ELLERSLIE DR SUMMERTIME LO:98 SE:04 PL:0047-0011
   
Property Owner Owner's Mailing Address
JOHNSON, MICHAEL A;JOHNSON, CARLA L REED
184 ELLERSLIE DRIVE
FAYETTEVILLE NC 28303
Parcel
Buildings
Misc Improvements
Land
Deeds
Documents
Notes
Sales
Sales Comparison
Photos
Building Location Address
184 ELLERSLIE DR
Building Description
R1-SINGLE-FAMILY-RES
Card   of  1
Bldg Type R1-SINGLE-FAMILY-RES
Units 0
Living Area (SQFT) 3042
Number of Stories 2.00
Style 000002-STYLE
Foundation G-PIERS-W/CNTFWL
Frame CONSTANT
Exterior 11-BRICK-VENEER
Const Type
Heating M-07&S-02
Air Cond AC-Y
Plumbing Baths (Full):   3
Baths (Half):   1
Extra Fixtures:   3
Total Plumbing Fixtures:   14 
Bedrooms 4
Floor 11-CARPET-COMB
Roof Cover 03-COMP SHINGLE
Roof Type 02-GABLE
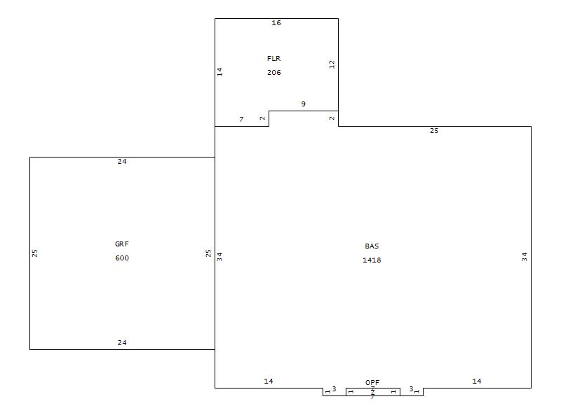
Main Body (SQFT) 1418
Year Built 1983
Additions 4
Effective Year 1983
Remodeled 0
Interior Adj.
Other Features
Building Total & Improvement Details

Grade 630 185%
Percentage Complete 100
Total Adjusted Replacement Cost New $635,267
Physical Depreciation (% Bad) A 21%
Depreciated Value $501,861
Economic Depreciation (% Bad) 0
Functional Depreciation (% Bad) 0
Total Depreciated Value $501,861
Market Area Factor 1.00
Building Value $501,861
Misc Improvements Value $526
Total Improvement Value $502,387

Assessed Land Value $202,000
   
Assessed Total Value $616,700



Addition Summary 
StoryTypeCodeArea
1.00 FLORIDA ROOM FLR 206
1.00 GARAGE FINISH GRF 600
1.00 OPEN PORCH FIN OPF 7
1.00 UPPER STY FIN USF 1418
 
Other Improvements 
UnitsDescriptionItemCodeYear% BadValue
14x14 DIMENSIONS CONCRETE PATIO 1983 65 526
 


Building Sketch
Photograph
Building Sketch Building Photo
(Click sketch for bigger image)