Cumberland County
Building Summary

Data last updated on: 11/11/2025     Ownership current as of: 10/31/2025     Tax Year: 2025
REID 0417885563000

PIN # 0417-88-5563

Location Address Property Description
2923 HYBART ST SUMMERTIME LO:87 SE:04 PL:0047-0011
   
Property Owner Owner's Mailing Address
DONICA, DAVID;FRANCIS, KATHLEEN
2923 HYBART STREET
FAYETTEVILLE NC 28303
Parcel
Buildings
Misc Improvements
Land
Deeds
Documents
Notes
Sales
Sales Comparison
Photos
Building Location Address
2923 HYBART ST
Building Description
R1-SINGLE-FAMILY-RES
Card   of  1
Bldg Type R1-SINGLE-FAMILY-RES
Units 0
Living Area (SQFT) 2448
Number of Stories 2.00
Style 000002-STYLE
Foundation G-PIERS-W/CNTFWL
Frame CONSTANT
Exterior 22-CONCRETE-SIDING
Const Type
Heating M-07&S-01
Air Cond AC-Y
Plumbing Baths (Full):   2
Baths (Half):   1
Extra Fixtures:   2
Total Plumbing Fixtures:   10 
Bedrooms 4
Floor 11-CARPET-COMB
Roof Cover 03-COMP SHINGLE
Roof Type 02-GABLE
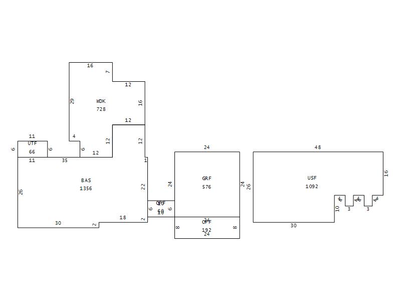
Main Body (SQFT) 1356
Year Built 1981
Additions 7
Effective Year 1981
Remodeled 0
Interior Adj.
Other Features
Building Total & Improvement Details

Grade 470 135%
Percentage Complete 100
Total Adjusted Replacement Cost New $422,025
Physical Depreciation (% Bad) A 27%
Depreciated Value $308,078
Economic Depreciation (% Bad) 0
Functional Depreciation (% Bad) 0
Total Depreciated Value $308,078
Market Area Factor 1.00
Building Value $308,078
Misc Improvements Value $990
Total Improvement Value $309,068

Assessed Land Value $143,925
   
Assessed Total Value $468,800



Addition Summary 
StoryTypeCodeArea
1.00 WOOD DECK WDK 728
1.00 UTILITY FIN UTF 66
1.00 OPEN PORCH FIN OPF 60
1.00 GARAGE FINISH GRF 576
1.00 OPEN PORCH FIN OPF 192
1.00 UPPER STY FIN USF 1092
1.00 OPEN PORCH FIN OPF 32
 
Other Improvements 
UnitsDescriptionItemCodeYear% BadValue
14x16 DIMENSIONS CANOPY 2000 65 990
 


Building Sketch
Photograph
Building Sketch Building Photo
(Click sketch for bigger image)