Cumberland County
Building Summary

Data last updated on: 11/11/2025     Ownership current as of: 10/31/2025     Tax Year: 2025
REID 0417897998000

PIN # 0417-89-7998

Location Address Property Description
306 FARLEY PL SUMMERTIME LO:120 SE:03 PL:0045-0074
   
Property Owner Owner's Mailing Address
BROBST, BRADLEY;DODSON, ALICE BETH
306 FARLEY PL
FAYETTEVILLE NC 28303
Parcel
Buildings
Misc Improvements
Land
Deeds
Documents
Notes
Sales
Sales Comparison
Photos
Building Location Address
306 FARLEY PL
Building Description
R1-SINGLE-FAMILY-RES
Card   of  1
Bldg Type R1-SINGLE-FAMILY-RES
Units 0
Living Area (SQFT) 3310
Number of Stories 2.00
Style 000002-STYLE
Foundation G-PIERS-W/CNTFWL
Frame CONSTANT
Exterior 05-DELUX-WOOD-SIDING
Const Type
Heating M-07&S-01
Air Cond AC-Y
Plumbing Baths (Full):   3
Baths (Half):   1
Extra Fixtures:   3
Total Plumbing Fixtures:   14 
Bedrooms 3
Floor 09-HARDWD-PARQUE
Roof Cover 06-OLD ASB/WD SHG
Roof Type 02-GABLE
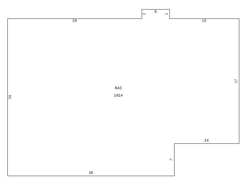
Main Body (SQFT) 1614
Year Built 1979
Additions 7
Effective Year 1992
Remodeled 0
Interior Adj.
Other Features
Building Total & Improvement Details

Grade 550 155%
Percentage Complete 100
Total Adjusted Replacement Cost New $590,199
Physical Depreciation (% Bad) A 20%
Depreciated Value $472,159
Economic Depreciation (% Bad) 0
Functional Depreciation (% Bad) 0
Total Depreciated Value $472,159
Market Area Factor 1.00
Building Value $472,159
Misc Improvements Value $1,365
Total Improvement Value $473,524

Assessed Land Value $151,500
   
Assessed Total Value $592,100



Addition Summary 
StoryTypeCodeArea
1.00 BASE SEMI FIN BSF 192
1.00 OPEN PORCH FIN OPF 40
1.00 GARAGE FINISH GRF 956
1.00 UTILITY FIN UTF 64
1.00 UPPER STY FIN USF 604
1.00 OPEN PORCH FIN OPF 176
1.00 UPPER STY FIN USF 900
 
Other Improvements 
UnitsDescriptionItemCodeYear% BadValue
8x6 DIMENSIONS BRICK PATIO 1983 65 318
9x6 DIMENSIONS STOOP 1983 65 371
14x18 DIMENSIONS CONCRETE PATIO 1983 65 676
 


Building Sketch
Photograph
Building Sketch Building Photo
(Click sketch for bigger image)