Cumberland County
Building Summary

Data last updated on: 12/2/2025     Ownership current as of: 11/19/2025     Tax Year: 2025
REID 0418779204000

PIN # 0418-77-9204

Location Address Property Description
1213 DUNCAN ST CAMBRIDGE LO:18 SE:01 PL:0035-0077
   
Property Owner Owner's Mailing Address
SUGGS, STEVEN
1213 DUNCAN ST
FAYETTEVILLE NC 28303
Parcel
Buildings
Misc Improvements
Land
Deeds
Documents
Notes
Sales
Sales Comparison
Photos
Building Location Address
1213 DUNCAN ST
Building Description
R1-SINGLE-FAMILY-RES
Card   of  1
Bldg Type R1-SINGLE-FAMILY-RES
Units 0
Living Area (SQFT) 1680
Number of Stories 1.00
Style 000002-STYLE
Foundation G-PIERS-W/CNTFWL
Frame CONSTANT
Exterior 11-BRICK-VENEER
Const Type
Heating M-07&S-01
Air Cond AC-Y
Plumbing Baths (Full):   2
Baths (Half):   0
Extra Fixtures:   0
Total Plumbing Fixtures:   6 
Bedrooms 3
Floor 11-CARPET-COMB
Roof Cover 03-COMP SHINGLE
Roof Type 02-GABLE
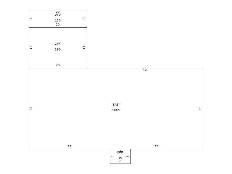
Main Body (SQFT) 1680
Year Built 1972
Additions 3
Effective Year 1972
Remodeled 0
Interior Adj.
Other Features
Building Total & Improvement Details

Grade 350 100%
Percentage Complete 100
Total Adjusted Replacement Cost New $198,151
Physical Depreciation (% Bad) A 34%
Depreciated Value $130,780
Economic Depreciation (% Bad) 0
Functional Depreciation (% Bad) 0
Total Depreciated Value $130,780
Market Area Factor 1.00
Building Value $130,780
Misc Improvements Value $805
Total Improvement Value $131,585

Assessed Land Value $30,000
   
Assessed Total Value $231,800



Addition Summary 
StoryTypeCodeArea
1.00 CARPORT FINISH CPF 280
1.00 UTILITY UNFIN UTU 120
1.00 OPEN PORCH FIN OPF 35
 
Other Improvements 
UnitsDescriptionItemCodeYear% BadValue
15x20 DIMENSIONS CONCRETE PATIO 1983 65 805
 


Building Sketch
Photograph
Building Sketch Building Photo
(Click sketch for bigger image)