Cumberland County
Building Summary

Data last updated on: 5/22/2026     Ownership current as of: 5/1/2026     Tax Year: 2026
REID 0418868693000

PIN # 0418-86-8693

Location Address Property Description
1601 BRISBY CT CAMBRIDGE LO:126 SE:5 PL:0042-0068
   
Property Owner Owner's Mailing Address
ONEILL, TAMARA A;ONEILL, TIMOTHY M
1601 BRISBY CT
FAYETTEVILLE NC 28303
Parcel
Buildings
Misc Improvements
Land
Deeds
Documents
Notes
Sales
Sales Comparison
Photos
Building Location Address
1601 BRISBY CT
Building Description
R1-SINGLE-FAMILY-RES
Card   of  1
Bldg Type R1-SINGLE-FAMILY-RES
Units 0
Living Area (SQFT) 1571
Number of Stories 1.00
Style 000002-STYLE
Foundation G-PIERS-W/CNTFWL
Frame CONSTANT
Exterior 11-BRICK-VENEER
Const Type
Heating M-07&S-01
Air Cond AC-Y
Plumbing Baths (Full):   2
Baths (Half):   0
Extra Fixtures:   0
Total Plumbing Fixtures:   6 
Bedrooms 3
Floor 11-CARPET-COMB
Roof Cover 03-COMP SHINGLE
Roof Type 02-GABLE
Main Body (SQFT) 1571
Year Built 1977
Additions 2
Effective Year 1977
Remodeled 0
Interior Adj.
Other Features
Building Total & Improvement Details

Grade 350 100%
Percentage Complete 100
Total Adjusted Replacement Cost New $193,106
Physical Depreciation (% Bad) A 32%
Depreciated Value $131,312
Economic Depreciation (% Bad) 0
Functional Depreciation (% Bad) 0
Total Depreciated Value $131,312
Market Area Factor 1.00
Building Value $131,312
Misc Improvements Value $2,694
Total Improvement Value $134,006

Assessed Land Value $28,500
   
Assessed Total Value $221,100



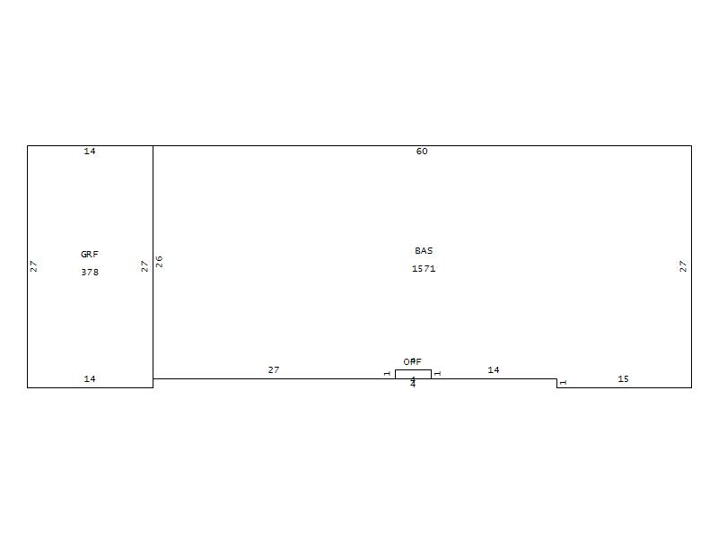
Addition Summary 
StoryTypeCodeArea
1.00 GARAGE FINISH GRF 378
1.00 OPEN PORCH FIN OPF 4
 
Other Improvements 
UnitsDescriptionItemCodeYear% BadValue
5x5 DIMENSIONS STOOP 1983 65 136
10x12 DIMENSIONS CONCRETE PATIO 1983 65 322
12X10 DIMENSIONS UTILITY FRAME 2011 42 2236
 


Building Sketch
Photograph
Building Sketch Building Photo
(Click sketch for bigger image)