Cumberland County
Building Summary

Data last updated on: 12/15/2025     Ownership current as of: 12/9/2025     Tax Year: 2025
REID 0404902264000

PIN # 0404-90-2264

Location Address Property Description
4327 FALLS DR FAIRWAY FOREST LO:21 SE:04 PL:0082-0108
   
Property Owner Owner's Mailing Address
BLAIR, JAMAL DARNELL
4327 FALLS DR
HOPE MILLS NC 28348
Parcel
Buildings
Misc Improvements
Land
Deeds
Documents
Notes
Sales
Sales Comparison
Photos
Building Location Address
4327 FALLS DR
Building Description
R1-SINGLE-FAMILY-RES
Card   of  1
Bldg Type R1-SINGLE-FAMILY-RES
Units 0
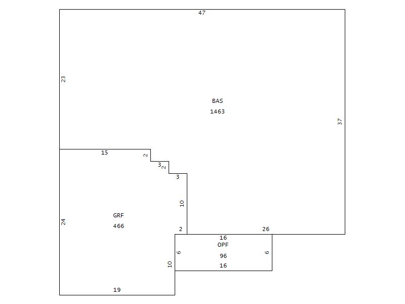
Living Area (SQFT) 1463
Number of Stories 1.00
Style 000002-STYLE
Foundation G-PIERS-W/CNTFWL
Frame CONSTANT
Exterior 12-BRICK/WOOD
Const Type
Heating M-07&S-01
Air Cond AC-Y
Plumbing Baths (Full):   2
Baths (Half):   0
Extra Fixtures:   0
Total Plumbing Fixtures:   6 
Bedrooms 3
Floor 11-CARPET-COMB
Roof Cover 03-COMP SHINGLE
Roof Type 02-GABLE
Main Body (SQFT) 1463
Year Built 1993
Additions 2
Effective Year 1993
Remodeled 0
Interior Adj.
Other Features
Building Total & Improvement Details

Grade 350 100%
Percentage Complete 100
Total Adjusted Replacement Cost New $183,709
Physical Depreciation (% Bad) A 24%
Depreciated Value $139,619
Economic Depreciation (% Bad) 0
Functional Depreciation (% Bad) 0
Total Depreciated Value $139,619
Market Area Factor 1.00
Building Value $139,619
Misc Improvements Value
Total Improvement Value $139,619

Assessed Land Value $35,000
   
Assessed Total Value $238,400



Addition Summary 
StoryTypeCodeArea
1.00 GARAGE FINISH GRF 466
1.00 OPEN PORCH FIN OPF 96
 
Other Improvements 
 


Building Sketch
Photograph
Building Sketch Building Photo
(Click sketch for bigger image)