Cumberland County
Building Summary

Data last updated on: 1/20/2026     Ownership current as of: 1/20/2026     Tax Year: 2026
REID 0418982381000

PIN # 0418-98-2381

Location Address Property Description
1743 SWANN ST CAMBRIDGE LO:PT 74 PH:01 SE:04 PL:0035-0023
   
Property Owner Owner's Mailing Address
MAXWELL, DEBRA;GAYLEARD, DENNIS
1743 SWANN ST
FAYETTEVILLE NC 28303
Parcel
Buildings
Misc Improvements
Land
Deeds
Documents
Notes
Sales
Sales Comparison
Photos
Building Location Address
1743 SWANN ST
Building Description
R1-SINGLE-FAMILY-RES
Card   of  1
Bldg Type R1-SINGLE-FAMILY-RES
Units 0
Living Area (SQFT) 2074
Number of Stories 1.75
Style 000002-STYLE
Foundation C-COMBO/SLAB/CSP
Frame CONSTANT
Exterior 12-BRICK/WOOD
Const Type
Heating M-07&S-01
Air Cond AC-Y
Plumbing Baths (Full):   2
Baths (Half):   1
Extra Fixtures:   0
Total Plumbing Fixtures:   8 
Bedrooms 3
Floor 11-CARPET-COMB
Roof Cover 03-COMP SHINGLE
Roof Type 02-GABLE
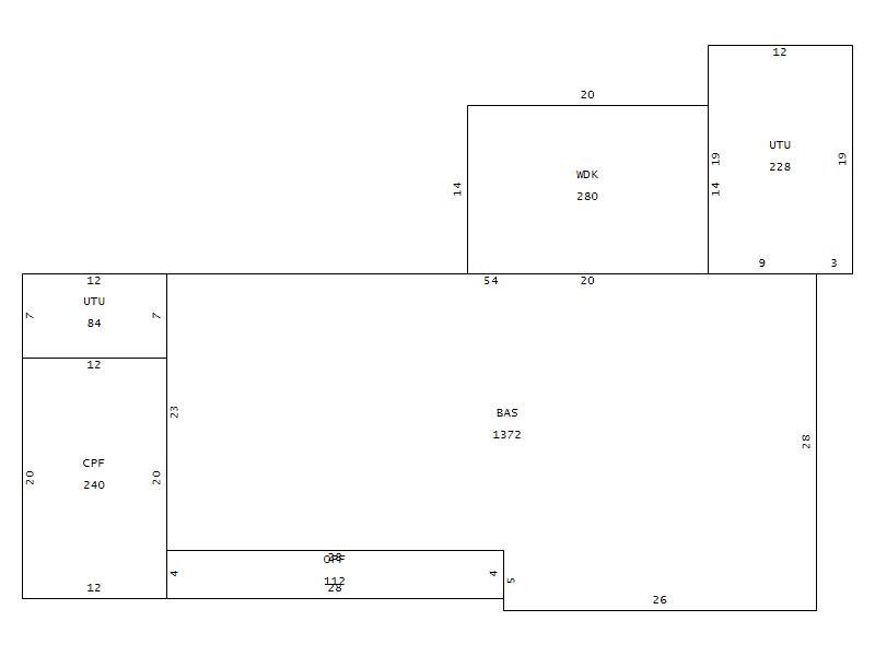
Main Body (SQFT) 1372
Year Built 1972
Additions 6
Effective Year 1972
Remodeled 0
Interior Adj.
Other Features
Building Total & Improvement Details

Grade 350 100%
Percentage Complete 100
Total Adjusted Replacement Cost New $244,353
Physical Depreciation (% Bad) A 34%
Depreciated Value $161,273
Economic Depreciation (% Bad) 0
Functional Depreciation (% Bad) 0
Total Depreciated Value $161,273
Market Area Factor 1.00
Building Value $161,273
Misc Improvements Value
Total Improvement Value $161,273

Assessed Land Value $30,000
   
Assessed Total Value $266,300



Addition Summary 
StoryTypeCodeArea
1.00 UTILITY UNFIN UTU 84
1.00 CARPORT FINISH CPF 240
1.00 OPEN PORCH FIN OPF 112
1.00 UTILITY UNFIN UTU 228
1.00 WOOD DECK WDK 280
1.00 LOWER STY FIN LSF 702
 
Other Improvements 
 


Building Sketch
Photograph
Building Sketch Building Photo
(Click sketch for bigger image)