Cumberland County
Building Summary

Data last updated on: 4/30/2026     Ownership current as of: 4/22/2026     Tax Year: 2026
REID 0418995997000

PIN # 0418-99-5997

Location Address Property Description
509 DALE DR MINTZ ESTATES LO:3 SE:01 BL:A PL:0024-0033
   
Property Owner Owner's Mailing Address
COULTER, KAREN M
509 DALE DR
FAYETTEVILLE NC 28303
Parcel
Buildings
Misc Improvements
Land
Deeds
Documents
Notes
Sales
Sales Comparison
Photos
Building Location Address
509 DALE DR
Building Description
R1-SINGLE-FAMILY-RES
Card   of  1
Bldg Type R1-SINGLE-FAMILY-RES
Units 0
Living Area (SQFT) 1617
Number of Stories 1.00
Style 000002-STYLE
Foundation G-PIERS-W/CNTFWL
Frame CONSTANT
Exterior 04-VINYL-SIDING
Const Type
Heating M-07&S-01
Air Cond AC-Y
Plumbing Baths (Full):   2
Baths (Half):   0
Extra Fixtures:   0
Total Plumbing Fixtures:   6 
Bedrooms 3
Floor 11-CARPET-COMB
Roof Cover 03-COMP SHINGLE
Roof Type 02-GABLE
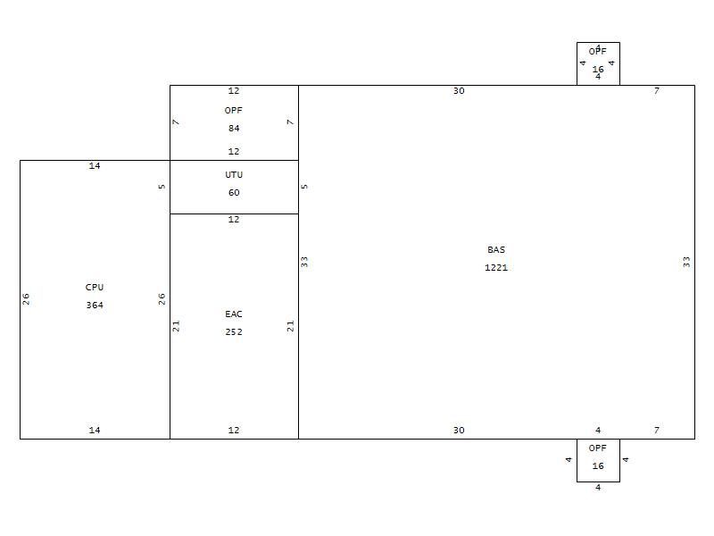
Main Body (SQFT) 1221
Year Built 1964
Additions 4
Effective Year 1974
Remodeled 0
Interior Adj.
Other Features
Building Total & Improvement Details

Grade 350 100%
Percentage Complete 100
Total Adjusted Replacement Cost New $169,742
Physical Depreciation (% Bad) A 33%
Depreciated Value $113,727
Economic Depreciation (% Bad) 0
Functional Depreciation (% Bad) 0
Total Depreciated Value $113,727
Market Area Factor 1.00
Building Value $113,727
Misc Improvements Value $1,604
Total Improvement Value $115,331

Assessed Land Value $32,000
   
Assessed Total Value $207,500



Addition Summary 
StoryTypeCodeArea
1.00 OPEN PORCH FIN OPF 16
1.00 ENCL AREA AVER EAC 396
1.00 CARPORT UNFIN CPU 364
1.00 OPEN PORCH FIN OPF 16
 
Other Improvements 
UnitsDescriptionItemCodeYear% BadValue
16X12 DIMENSIONS CONCRETE PATIO 2017 33 987
10X12 DIMENSIONS CONCRETE PATIO 2017 33 617
 


Building Sketch
Photograph
Building Sketch Building Photo
(Click sketch for bigger image)