Cumberland County
Building Summary

Data last updated on: 1/30/2026     Ownership current as of: 1/20/2026     Tax Year: 2026
REID 0424012615000

PIN # 0424-01-2615

Location Address Property Description
5108 CHURCH ST WILLIAM THOMAS HALL RECOMB LO:3 SE:01 PL:0121-0194
   
Property Owner Owner's Mailing Address
JACKSON, DEANDRA
5108 CHURCH ST
HOPE MILLS NC 28348
Parcel
Buildings
Misc Improvements
Land
Deeds
Documents
Notes
Sales
Sales Comparison
Photos
Building Location Address
5108 CHURCH ST
Building Description
R1-SINGLE-FAMILY-RES
Card   of  1
Bldg Type R1-SINGLE-FAMILY-RES
Units 0
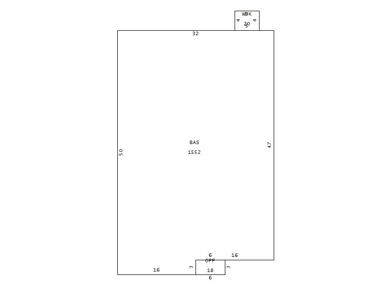
Living Area (SQFT) 1552
Number of Stories 1.00
Style 000002-STYLE
Foundation G-PIERS-W/CNTFWL
Frame CONSTANT
Exterior 04-VINYL-SIDING
Const Type
Heating M-07&S-02
Air Cond AC-Y
Plumbing Baths (Full):   2
Baths (Half):   0
Extra Fixtures:   1
Total Plumbing Fixtures:   7 
Bedrooms 3
Roof Cover 03-COMP SHINGLE
Roof Type 02-GABLE
Main Body (SQFT) 1552
Year Built 1955
Additions 1
Effective Year 1999
Remodeled 2008
Interior Adj.
Other Features
Building Total & Improvement Details

Grade 350 100%
Percentage Complete 100
Total Adjusted Replacement Cost New $165,057
Physical Depreciation (% Bad) A 22%
Depreciated Value $128,744
Economic Depreciation (% Bad) 0
Functional Depreciation (% Bad) 0
Total Depreciated Value $128,744
Market Area Factor 1.00
Building Value $128,744
Misc Improvements Value $5,617
Total Improvement Value $134,361

Assessed Land Value $16,000
   
Assessed Total Value $227,000



Addition Summary 
StoryTypeCodeArea
1.00 OPEN PORCH FIN OPF 18
 
Other Improvements 
UnitsDescriptionItemCodeYear% BadValue
12X28 DIMENSIONS CANOPY OVER PATIO 2021 20 3143
10X14 DIMENSIONS UTILITY FRAME 2010 45 2474
 


Building Sketch
Photograph
Building Sketch Building Photo
(Click sketch for bigger image)