Cumberland County
Building Summary

Data last updated on: 1/30/2026     Ownership current as of: 1/20/2026     Tax Year: 2026
REID 0424222234000

PIN # 0424-22-2234

Location Address Property Description
4146 LONGVIEW AVE T C BRNUM LO:PT 3 & 4 SE:01 PL:0010-0074
   
Property Owner Owner's Mailing Address
THOMAS, ANDREW FLOYD
4146 LONGVIEW AVE
HOPE MILLS NC 28348
Parcel
Buildings
Misc Improvements
Land
Deeds
Documents
Notes
Sales
Sales Comparison
Photos
Building Location Address
4146 LONGVIEW AVE
Building Description
R1-SINGLE-FAMILY-RES
Card   of  1
Bldg Type R1-SINGLE-FAMILY-RES
Units 0
Living Area (SQFT) 1437
Number of Stories 1.00
Style 000088-STYLE
Foundation S-SLAB
Frame CONSTANT
Exterior 04-VINYL-SIDING
Const Type
Heating M-07&S-01
Air Cond AC-Y
Plumbing Baths (Full):   2
Baths (Half):   0
Extra Fixtures:   1
Total Plumbing Fixtures:   7 
Bedrooms 3
Roof Cover 03-COMP SHINGLE
Roof Type 02-GABLE
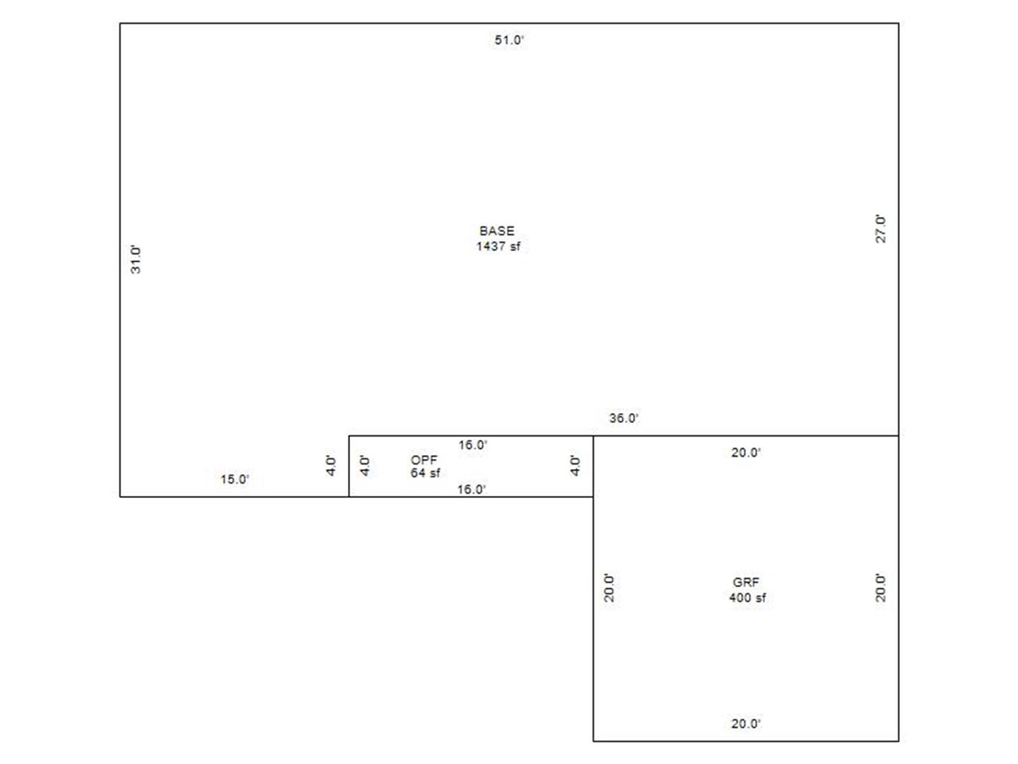
Main Body (SQFT) 1437
Year Built 2023
Additions 2
Effective Year 2023
Remodeled 0
Interior Adj.
Other Features
Building Total & Improvement Details

Grade 350 100%
Percentage Complete 100
Total Adjusted Replacement Cost New $169,495
Physical Depreciation (% Bad) V 2%
Depreciated Value $166,105
Economic Depreciation (% Bad) 0
Functional Depreciation (% Bad) 0
Total Depreciated Value $166,105
Market Area Factor 1.00
Building Value $166,105
Misc Improvements Value $683
Total Improvement Value $166,788

Assessed Land Value $16,000
   
Assessed Total Value $264,300



Addition Summary 
StoryTypeCodeArea
1.00 GARAGE FINISH GRF 400
1.00 OPEN PORCH FIN OPF 64
 
Other Improvements 
UnitsDescriptionItemCodeYear% BadValue
10x10 DIMENSIONS CONCRETE PATIO 2024 11 683
 


Building Sketch
Photograph
Building Sketch Building Photo
(Click sketch for bigger image)