Cumberland County
Building Summary

Data last updated on: 1/30/2026     Ownership current as of: 1/20/2026     Tax Year: 2026
REID 0424313719000

PIN # 0424-31-3719

Location Address Property Description
4355 LONGVIEW AVE CAROL LECUYER REDIV LO:2B SE:01 PL:0098-0157
   
Property Owner Owner's Mailing Address
MCCULLOUGH, ROBERT PAUL
4355 LONGVIEW AVENUE
HOPE MILLS NC 28348
Parcel
Buildings
Misc Improvements
Land
Deeds
Documents
Notes
Sales
Sales Comparison
Photos
Building Location Address
4355 LONGVIEW AVE
Building Description
R1-SINGLE-FAMILY-RES
Card   of  1
Bldg Type R1-SINGLE-FAMILY-RES
Units 0
Living Area (SQFT) 1864
Number of Stories 1.00
Style 000002-STYLE
Foundation S-SLAB
Frame CONSTANT
Exterior 05-DELUX-WOOD-SIDING
Const Type
Heating M-07&S-01
Air Cond AC-Y
Plumbing Baths (Full):   1
Baths (Half):   0
Extra Fixtures:   1
Total Plumbing Fixtures:   4 
Bedrooms 1
Floor 11-CARPET-COMB
Roof Cover 02-METAL ROOF
Roof Type 02-GABLE
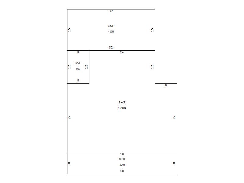
Main Body (SQFT) 1288
Year Built 1988
Additions 3
Effective Year 1994
Remodeled 2013
Interior Adj.
Other Features
Building Total & Improvement Details

Grade 350 100%
Percentage Complete 100
Total Adjusted Replacement Cost New $189,443
Physical Depreciation (% Bad) A 24%
Depreciated Value $143,977
Economic Depreciation (% Bad) 0
Functional Depreciation (% Bad) 0
Total Depreciated Value $143,977
Market Area Factor 1.00
Building Value $143,977
Misc Improvements Value $10,126
Total Improvement Value $154,103

Assessed Land Value $24,000
   
Assessed Total Value $252,000



Addition Summary 
StoryTypeCodeArea
1.00 BASE SEMI FIN BSF 480
1.00 BASE SEMI FIN BSF 96
1.00 OPEN POR UNFIN OPU 320
 
Other Improvements 
UnitsDescriptionItemCodeYear% BadValue
15x33 DIMENSIONS GARAGE FRAME UNFINISHED 2000 45 8332
 


Building Sketch
Photograph
Building Sketch Building Photo
(Click sketch for bigger image)