Cumberland County
Building Summary

Data last updated on: 12/23/2025     Ownership current as of: 12/17/2025     Tax Year: 2025
REID 0424591790000

PIN # 0424-59-1790

Location Address Property Description
2720 DANIEL BOONE LN PIONEER POINTE LO:59 SE:01 PL:0114-0070
   
Property Owner Owner's Mailing Address
BAKER, ELI;BAKER, JULIA SARA
2720 DANIEL BOONE LANE
HOPE MILLS NC 28348
Parcel
Buildings
Misc Improvements
Land
Deeds
Documents
Notes
Sales
Sales Comparison
Photos
Building Location Address
2720 DANIEL BOONE LN
Building Description
R1-SINGLE-FAMILY-RES
Card   of  1
Bldg Type R1-SINGLE-FAMILY-RES
Units 0
Living Area (SQFT) 1829
Number of Stories 1.00
Style 000002-STYLE
Foundation S-SLAB
Frame CONSTANT
Exterior 04-VINYL-SIDING
Const Type
Heating M-07&S-01
Air Cond AC-Y
Plumbing Baths (Full):   2
Baths (Half):   0
Extra Fixtures:   2
Total Plumbing Fixtures:   8 
Bedrooms 3
Roof Cover 03-COMP SHINGLE
Roof Type 02-GABLE
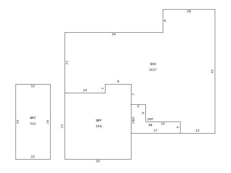
Main Body (SQFT) 1517
Year Built 2006
Additions 4
Effective Year 2006
Remodeled 0
Interior Adj.
Other Features
Building Total & Improvement Details

Grade 350 100%
Percentage Complete 100
Total Adjusted Replacement Cost New $218,044
Physical Depreciation (% Bad) A 18%
Depreciated Value $178,796
Economic Depreciation (% Bad) 0
Functional Depreciation (% Bad) 0
Total Depreciated Value $178,796
Market Area Factor 1.00
Building Value $178,796
Misc Improvements Value $790
Total Improvement Value $179,586

Assessed Land Value $42,000
   
Assessed Total Value $282,200



Addition Summary 
StoryTypeCodeArea
1.00 OPEN PORCH FIN OPF 98
1.00 GARAGE FINISH GRF 556
1.00 BONUS RM FINIS BRF 312
1.00 OPEN PORCH FIN OPF 336
 
Other Improvements 
UnitsDescriptionItemCodeYear% BadValue
14x10 DIMENSIONS CONCRETE PATIO 2006 65 376
8X10 DIMENSIONS UTILITY METAL 2021 20 414
 


Building Sketch
Photograph
Building Sketch Building Photo
(Click sketch for bigger image)