Cumberland County
Building Summary

Data last updated on: 12/23/2025     Ownership current as of: 12/17/2025     Tax Year: 2025
REID 0424591878000

PIN # 0424-59-1878

Location Address Property Description
2712 DANIEL BOONE LN PIONEER POINTE LO:57 SE:01 PL:0114-0070
   
Property Owner Owner's Mailing Address
MORTINGER, RUSSELL JAMES
2712 DANIEL BOONE LN
HOPE MILLS NC 28348
Parcel
Buildings
Misc Improvements
Land
Deeds
Documents
Notes
Sales
Sales Comparison
Photos
Building Location Address
2712 DANIEL BOONE LN
Building Description
R1-SINGLE-FAMILY-RES
Card   of  1
Bldg Type R1-SINGLE-FAMILY-RES
Units 0
Living Area (SQFT) 1655
Number of Stories 1.00
Style 000002-STYLE
Foundation S-SLAB
Frame CONSTANT
Exterior 04-VINYL-SIDING
Const Type
Heating M-07&S-01
Air Cond AC-Y
Plumbing Baths (Full):   2
Baths (Half):   0
Extra Fixtures:   1
Total Plumbing Fixtures:   7 
Bedrooms 3
Roof Cover 03-COMP SHINGLE
Roof Type 02-GABLE
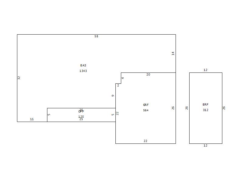
Main Body (SQFT) 1343
Year Built 2006
Additions 3
Effective Year 2011
Remodeled 0
Interior Adj.
Other Features
Building Total & Improvement Details

Grade 350 100%
Percentage Complete 100
Total Adjusted Replacement Cost New $192,288
Physical Depreciation (% Bad) A 16%
Depreciated Value $161,522
Economic Depreciation (% Bad) 0
Functional Depreciation (% Bad) 0
Total Depreciated Value $161,522
Market Area Factor 1.00
Building Value $161,522
Misc Improvements Value $752
Total Improvement Value $162,274

Assessed Land Value $42,000
   
Assessed Total Value $262,400



Addition Summary 
StoryTypeCodeArea
1.00 GARAGE FINISH GRF 564
1.00 OPEN PORCH FIN OPF 125
1.00 BONUS RM FINIS BRF 312
 
Other Improvements 
UnitsDescriptionItemCodeYear% BadValue
20x14 DIMENSIONS CONCRETE PATIO 2006 65 752
 


Building Sketch
Photograph
Building Sketch Building Photo
(Click sketch for bigger image)