Cumberland County
Building Summary

Data last updated on: 12/23/2025     Ownership current as of: 12/17/2025     Tax Year: 2025
REID 0424596419000

PIN # 0424-59-6419

Location Address Property Description
430 TURRET CT PIONEER POINTE LO:23 SE:01 PL:0114-0070
   
Property Owner Owner's Mailing Address
BROWN, WALTER JR
430 TURRET CT
HOPE MILLS NC 28348
Parcel
Buildings
Misc Improvements
Land
Deeds
Documents
Notes
Sales
Sales Comparison
Photos
Building Location Address
430 TURRET CT
Building Description
R1-SINGLE-FAMILY-RES
Card   of  1
Bldg Type R1-SINGLE-FAMILY-RES
Units 0
Living Area (SQFT) 1618
Number of Stories 1.00
Style 000002-STYLE
Foundation S-SLAB
Frame CONSTANT
Exterior 04-VINYL-SIDING
Const Type
Heating M-07&S-01
Air Cond AC-Y
Plumbing Baths (Full):   2
Baths (Half):   0
Extra Fixtures:   2
Total Plumbing Fixtures:   8 
Bedrooms 3
Roof Cover 03-COMP SHINGLE
Roof Type 02-GABLE
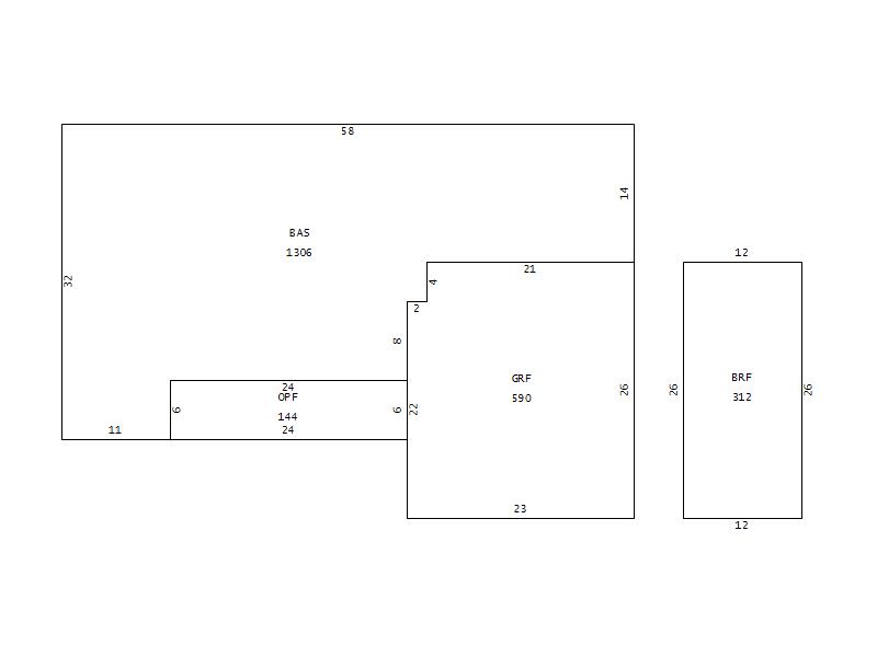
Main Body (SQFT) 1306
Year Built 2005
Additions 3
Effective Year 2005
Remodeled 0
Interior Adj.
Other Features
Building Total & Improvement Details

Grade 350 100%
Percentage Complete 100
Total Adjusted Replacement Cost New $191,856
Physical Depreciation (% Bad) A 19%
Depreciated Value $155,403
Economic Depreciation (% Bad) 0
Functional Depreciation (% Bad) 0
Total Depreciated Value $155,403
Market Area Factor 1.00
Building Value $155,403
Misc Improvements Value $451
Total Improvement Value $155,854

Assessed Land Value $42,000
   
Assessed Total Value $256,200



Addition Summary 
StoryTypeCodeArea
1.00 GARAGE FINISH GRF 590
1.00 OPEN PORCH FIN OPF 144
1.00 BONUS RM FINIS BRF 312
 
Other Improvements 
UnitsDescriptionItemCodeYear% BadValue
14x12 DIMENSIONS CONCRETE PATIO 2005 65 451
 


Building Sketch
Photograph
Building Sketch Building Photo
(Click sketch for bigger image)