Cumberland County
Building Summary

Data last updated on: 2/1/2026     Ownership current as of: 1/20/2026     Tax Year: 2026
REID 0405087391000

PIN # 0405-08-7391

Location Address Property Description
2012 COBBLESTONE PL ARRAN LAKES WEST LO:373 SE:07 PL:0052-0083
   
Property Owner Owner's Mailing Address
GRIGGS, AARON FORREST
2012 COBBLESTONE PL
FAYETTEVILLE NC 28304
Parcel
Buildings
Misc Improvements
Land
Deeds
Documents
Notes
Sales
Sales Comparison
Photos
Building Location Address
2012 COBBLESTONE PL
Building Description
R1-SINGLE-FAMILY-RES
Card   of  1
Bldg Type R1-SINGLE-FAMILY-RES
Units 0
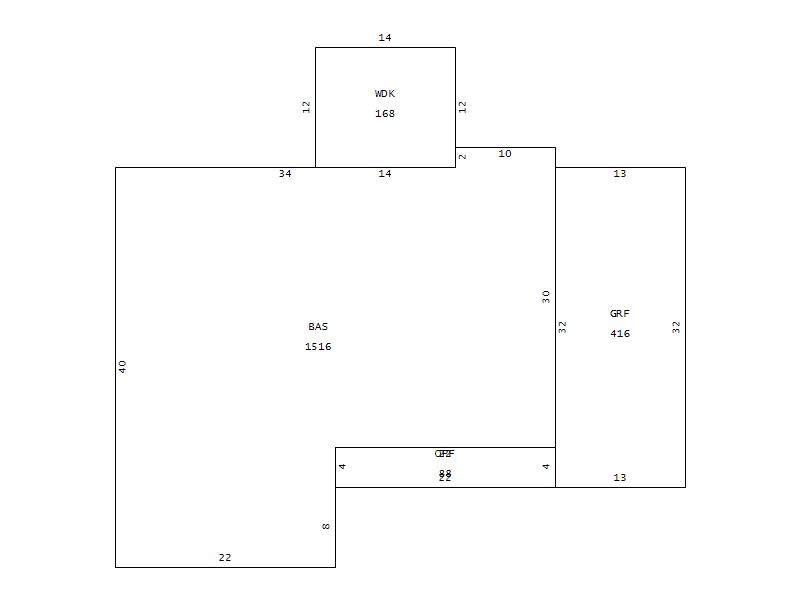
Living Area (SQFT) 1516
Number of Stories 1.00
Style 000002-STYLE
Foundation G-PIERS-W/CNTFWL
Frame CONSTANT
Exterior 12-BRICK/WOOD
Const Type
Heating M-08&S-01
Air Cond AC-Y
Plumbing Baths (Full):   2
Baths (Half):   0
Extra Fixtures:   0
Total Plumbing Fixtures:   6 
Bedrooms 3
Floor 12-CARPET
Roof Cover 03-COMP SHINGLE
Roof Type 02-GABLE
Main Body (SQFT) 1516
Year Built 1983
Additions 3
Effective Year 1983
Remodeled 0
Interior Adj.
Other Features
Building Total & Improvement Details

Grade 350 100%
Percentage Complete 100
Total Adjusted Replacement Cost New $189,794
Physical Depreciation (% Bad) A 29%
Depreciated Value $134,754
Economic Depreciation (% Bad) 0
Functional Depreciation (% Bad) 0
Total Depreciated Value $134,754
Market Area Factor 1.00
Building Value $134,754
Misc Improvements Value $87
Total Improvement Value $134,841

Assessed Land Value $35,000
   
Assessed Total Value $235,300



Addition Summary 
StoryTypeCodeArea
1.00 OPEN PORCH FIN OPF 88
1.00 GARAGE FINISH GRF 416
1.00 WOOD DECK WDK 168
 
Other Improvements 
UnitsDescriptionItemCodeYear% BadValue
4x4 DIMENSIONS STOOP 1983 65 87
 


Building Sketch
Photograph
Building Sketch Building Photo
(Click sketch for bigger image)