Cumberland County
Building Summary

Data last updated on: 2/1/2026     Ownership current as of: 1/20/2026     Tax Year: 2026
REID 0405092848000

PIN # 0405-09-2848

Location Address Property Description
2109 LOTHBURY DR ARRAN LAKES WEST LO:475 SE:08 PL:0053-0006
   
Property Owner Owner's Mailing Address
PATTERSON, MICHEL ANTOINE
2109 LOTHBURY DR
FAYETTEVILLE NC 28304

Value subject to change, property assessment under review

Parcel
Buildings
Misc Improvements
Land
Deeds
Documents
Notes
Sales
Photos
Building Location Address
2109 LOTHBURY DR
Building Description
R1-SINGLE-FAMILY-RES
Card   of  1
Bldg Type R1-SINGLE-FAMILY-RES
Units 0
Living Area (SQFT) 1638
Number of Stories 1.00
Style 000002-STYLE
Foundation G-PIERS-W/CNTFWL
Frame CONSTANT
Exterior 03-MAS/ABST/OLD-WOOD
Const Type
Heating M-08&S-01
Air Cond AC-Y
Plumbing Baths (Full):   2
Baths (Half):   0
Extra Fixtures:   0
Total Plumbing Fixtures:   6 
Bedrooms 3
Floor 12-CARPET
Roof Cover 03-COMP SHINGLE
Roof Type 02-GABLE
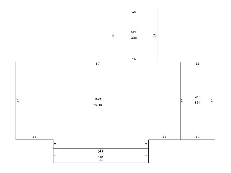
Main Body (SQFT) 1638
Year Built 1984
Additions 3
Effective Year 1984
Remodeled 0
Interior Adj.
Other Features
Building Total & Improvement Details

Grade 350 100%
Percentage Complete 100
Total Adjusted Replacement Cost New
Physical Depreciation (% Bad) A 28%
Depreciated Value
Economic Depreciation (% Bad) 0
Functional Depreciation (% Bad) 0
Total Depreciated Value
Market Area Factor 1.00
Building Value
Misc Improvements Value
Total Improvement Value

Assessed Land Value
   
Assessed Total Value



Addition Summary 
StoryTypeCodeArea
1.00 OPEN PORCH FIN OPF 165
1.00 GARAGE FINISH GRF 324
1.00 SCREEN PORCH F SPF 288
 
Other Improvements 
UnitsDescriptionItemCodeYear% BadValue
22x24 DIMENSIONS FRAME GARAGE 2000 45
12x12 DIMENSIONS CONCRETE PATIO 1983 65
 


Building Sketch
Photograph
Building Sketch Building Photo
(Click sketch for bigger image)