Cumberland County
Building Summary

Data last updated on: 11/26/2025     Ownership current as of: 11/18/2025     Tax Year: 2025
REID 0425267151000

PIN # 0425-26-7151

Location Address Property Description
3739 CAMDEN RD 0.44 AC TURNER LD
   
Property Owner Owner's Mailing Address
JOACHIM, SYLVESTER
3739 CAMDEN ROAD
FAYETTEVILLE NC 28306
Parcel
Buildings
Misc Improvements
Land
Deeds
Documents
Notes
Sales
Sales Comparison
Photos
Building Location Address
3739 CAMDEN RD
Building Description
R1-SINGLE-FAMILY-RES
Card   of  1
Bldg Type R1-SINGLE-FAMILY-RES
Units 0
Living Area (SQFT) 1728
Number of Stories 1.00
Style 000002-STYLE
Foundation G-PIERS-W/CNTFWL
Frame CONSTANT
Exterior 11-BRICK-VENEER
Const Type
Heating M-07&S-01
Air Cond AC-Y
Plumbing Baths (Full):   2
Baths (Half):   1
Extra Fixtures:   0
Total Plumbing Fixtures:   8 
Bedrooms 3
Floor 09-HARDWD-PARQUE
Roof Cover 03-COMP SHINGLE
Roof Type 02-GABLE
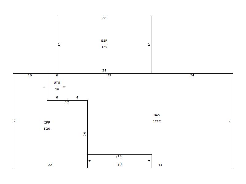
Main Body (SQFT) 1252
Year Built 1963
Additions 5
Effective Year 1963
Remodeled 0
Interior Adj.
Other Features
Building Total & Improvement Details

Grade 350 100%
Percentage Complete 100
Total Adjusted Replacement Cost New $209,580
Physical Depreciation (% Bad) A 38%
Depreciated Value $129,940
Economic Depreciation (% Bad) 0
Functional Depreciation (% Bad) 0
Total Depreciated Value $129,940
Market Area Factor 1.00
Building Value $129,940
Misc Improvements Value $2,699
Total Improvement Value $132,639

Assessed Land Value $10,500
   
Assessed Total Value $215,100



Addition Summary 
StoryTypeCodeArea
1.00 BASE SEMI FIN BSF 476
1.00 UTILITY UNFIN UTU 48
1.00 CARPORT FINISH CPF 520
1.00 OPEN PORCH FIN OPF 76
1.00 SCREEN PORCH U SPU 180
 
Other Improvements 
UnitsDescriptionItemCodeYear% BadValue
12x20 DIMENSIONS UTILITY FRAME 1983 65 2699
 


Building Sketch
Photograph
Building Sketch Building Photo
(Click sketch for bigger image)