Cumberland County
Building Summary

Data last updated on: 12/23/2025     Ownership current as of: 12/17/2025     Tax Year: 2025
REID 0425509630000

PIN # 0425-50-9630

Location Address Property Description
2523 CRUMPLER DR PIONEER POINTE REV LO:80 SE:2PT-A PL:0117-0083
   
Property Owner Owner's Mailing Address
EASON, MICHAEL ALEXANDER
2523 CRUMPLER DRIVE
HOPE MILLS NC 28348
Parcel
Buildings
Misc Improvements
Land
Deeds
Documents
Notes
Sales
Sales Comparison
Photos
Building Location Address
2523 CRUMPLER DR
Building Description
R1-SINGLE-FAMILY-RES
Card   of  1
Bldg Type R1-SINGLE-FAMILY-RES
Units 0
Living Area (SQFT) 1686
Number of Stories 1.00
Style 000002-STYLE
Foundation S-SLAB
Frame CONSTANT
Exterior 04-VINYL-SIDING
Const Type
Heating M-07&S-01
Air Cond AC-Y
Plumbing Baths (Full):   2
Baths (Half):   0
Extra Fixtures:   2
Total Plumbing Fixtures:   8 
Bedrooms 3
Roof Cover 03-COMP SHINGLE
Roof Type 02-GABLE
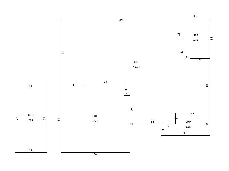
Main Body (SQFT) 1422
Year Built 2007
Additions 4
Effective Year 2007
Remodeled 0
Interior Adj.
Other Features
Building Total & Improvement Details

Grade 350 100%
Percentage Complete 100
Total Adjusted Replacement Cost New $204,481
Physical Depreciation (% Bad) A 18%
Depreciated Value $167,674
Economic Depreciation (% Bad) 0
Functional Depreciation (% Bad) 0
Total Depreciated Value $167,674
Market Area Factor 1.00
Building Value $167,674
Misc Improvements Value
Total Improvement Value $167,674

Assessed Land Value $42,000
   
Assessed Total Value $265,500



Addition Summary 
StoryTypeCodeArea
1.00 SCREEN PORCH F SPF 135
1.00 OPEN PORCH FIN OPF 116
1.00 GARAGE FINISH GRF 559
1.00 BONUS RM FINIS BRF 264
 
Other Improvements 
 


Building Sketch
Photograph
Building Sketch Building Photo
(Click sketch for bigger image)