Cumberland County
Building Summary

Data last updated on: 12/23/2025     Ownership current as of: 12/17/2025     Tax Year: 2025
REID 0425519064000

PIN # 0425-51-9064

Location Address Property Description
2503 CRUMPLER DR PIONEER POINTE REV LO:75 SE:2PT-A PL:0117-0083
   
Property Owner Owner's Mailing Address
MARQUEZ, ISAAC
2503 CRUMPLER DRIVE
HOPE MILLS NC 28348
Parcel
Buildings
Misc Improvements
Land
Deeds
Documents
Notes
Sales
Sales Comparison
Photos
Building Location Address
2503 CRUMPLER DR
Building Description
R1-SINGLE-FAMILY-RES
Card   of  1
Bldg Type R1-SINGLE-FAMILY-RES
Units 0
Living Area (SQFT) 1705
Number of Stories 1.00
Style 000002-STYLE
Foundation S-SLAB
Frame CONSTANT
Exterior 04-VINYL-SIDING
Const Type
Heating M-07&S-01
Air Cond AC-Y
Plumbing Baths (Full):   2
Baths (Half):   0
Extra Fixtures:   2
Total Plumbing Fixtures:   8 
Bedrooms 3
Roof Cover 03-COMP SHINGLE
Roof Type 02-GABLE
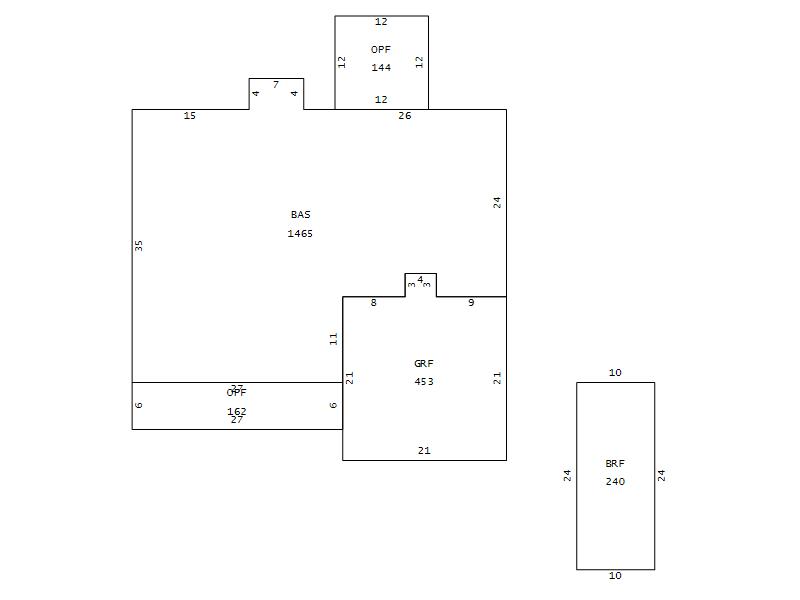
Main Body (SQFT) 1465
Year Built 2008
Additions 4
Effective Year 2008
Remodeled 0
Interior Adj.
Other Features
Building Total & Improvement Details

Grade 350 100%
Percentage Complete 100
Total Adjusted Replacement Cost New $201,627
Physical Depreciation (% Bad) A 17%
Depreciated Value $167,350
Economic Depreciation (% Bad) 0
Functional Depreciation (% Bad) 0
Total Depreciated Value $167,350
Market Area Factor 1.00
Building Value $167,350
Misc Improvements Value $423
Total Improvement Value $167,773

Assessed Land Value $42,000
   
Assessed Total Value $269,500



Addition Summary 
StoryTypeCodeArea
1.00 OPEN PORCH FIN OPF 144
1.00 GARAGE FINISH GRF 453
1.00 OPEN PORCH FIN OPF 162
1.00 BONUS RM FINIS BRF 240
 
Other Improvements 
UnitsDescriptionItemCodeYear% BadValue
13x16 DIMENSIONS CONCRETE PATIO 2013 47 423
 


Building Sketch
Photograph
Building Sketch Building Photo
(Click sketch for bigger image)