Cumberland County
Building Summary

Data last updated on: 12/23/2025     Ownership current as of: 12/17/2025     Tax Year: 2025
REID 0425601988000

PIN # 0425-60-1988

Location Address Property Description
2416 CAMP LEJEUNE CT PIONEER POINTE LO:110 SE:2PT-B PL:0117-0198
   
Property Owner Owner's Mailing Address
DOWNING, MATTHEW JAMES III;SMITH, REBECCA N
2416 CAMP LEJUNE CT
HOPE MILLS NC 28348
Parcel
Buildings
Misc Improvements
Land
Deeds
Documents
Notes
Sales
Sales Comparison
Photos
Building Location Address
2416 CAMP LEJEUNE CT
Building Description
R1-SINGLE-FAMILY-RES
Card   of  1
Bldg Type R1-SINGLE-FAMILY-RES
Units 0
Living Area (SQFT) 1699
Number of Stories 1.00
Style 000002-STYLE
Foundation S-SLAB
Frame CONSTANT
Exterior 04-VINYL-SIDING
Const Type
Heating M-07&S-01
Air Cond AC-Y
Plumbing Baths (Full):   2
Baths (Half):   0
Extra Fixtures:   2
Total Plumbing Fixtures:   8 
Bedrooms 3
Roof Cover 03-COMP SHINGLE
Roof Type 02-GABLE
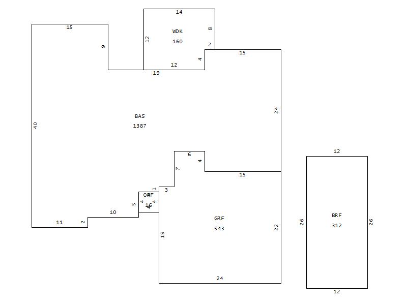
Main Body (SQFT) 1387
Year Built 2007
Additions 4
Effective Year 2007
Remodeled 0
Interior Adj.
Other Features
Building Total & Improvement Details

Grade 350 100%
Percentage Complete 100
Total Adjusted Replacement Cost New $198,268
Physical Depreciation (% Bad) A 18%
Depreciated Value $162,580
Economic Depreciation (% Bad) 0
Functional Depreciation (% Bad) 0
Total Depreciated Value $162,580
Market Area Factor 1.00
Building Value $162,580
Misc Improvements Value
Total Improvement Value $162,580

Assessed Land Value $42,000
   
Assessed Total Value $263,100



Addition Summary 
StoryTypeCodeArea
1.00 WOOD DECK WDK 160
1.00 GARAGE FINISH GRF 543
1.00 OPEN PORCH FIN OPF 16
1.00 BONUS RM FINIS BRF 312
 
Other Improvements 
 


Building Sketch
Photograph
Building Sketch Building Photo
(Click sketch for bigger image)