Cumberland County
Building Summary

Data last updated on: 1/29/2026     Ownership current as of: 1/20/2026     Tax Year: 2026
REID 0426044282000

PIN # 0426-04-4282

Location Address Property Description
3301 MADISON AVE BORDEAUX LO:1 SE:04 PL:0022-0052
   
Property Owner Owner's Mailing Address
PILGRIM, JAMES JUNIOUS III
3301 MADISON AVE
FAYETTEVILLE NC 28304
Parcel
Buildings
Misc Improvements
Land
Deeds
Documents
Notes
Sales
Sales Comparison
Photos
Building Location Address
3301 MADISON AVE
Building Description
R1-SINGLE-FAMILY-RES
Card   of  1
Bldg Type R1-SINGLE-FAMILY-RES
Units 0
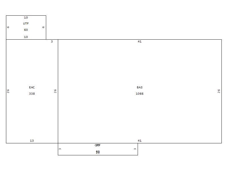
Living Area (SQFT) 1066
Number of Stories 1.00
Style 000002-STYLE
Foundation G-PIERS-W/CNTFWL
Frame CONSTANT
Exterior 11-BRICK-VENEER
Const Type
Heating M-07&S-02
Air Cond AC-Y
Plumbing Baths (Full):   1
Baths (Half):   1
Extra Fixtures:   0
Total Plumbing Fixtures:   5 
Bedrooms 3
Floor 09-HARDWD-PARQUE
Roof Cover 03-COMP SHINGLE
Roof Type 02-GABLE
Main Body (SQFT) 1066
Year Built 1959
Additions 3
Effective Year 1972
Remodeled 0
Interior Adj.
Other Features
Building Total & Improvement Details

Grade 350 100%
Percentage Complete 100
Total Adjusted Replacement Cost New $141,531
Physical Depreciation (% Bad) A 34%
Depreciated Value $93,410
Economic Depreciation (% Bad) 0
Functional Depreciation (% Bad) 0
Total Depreciated Value $93,410
Market Area Factor 1.00
Building Value $93,410
Misc Improvements Value $2,215
Total Improvement Value $95,625

Assessed Land Value $34,000
   
Assessed Total Value $173,900



Addition Summary 
StoryTypeCodeArea
1.00 GARAGE FINISH GRF 338
1.00 UTILITY FIN UTF 60
1.00 OPEN PORCH FIN OPF 60
 
Other Improvements 
UnitsDescriptionItemCodeYear% BadValue
10x12 DIMENSIONS BRICK PATIO 1983 65 621
12x10 DIMENSIONS UTILITY FRAME 2009 47 1594
 


Building Sketch
Photograph
Building Sketch Building Photo
(Click sketch for bigger image)