Cumberland County
Building Summary

Data last updated on: 1/30/2026     Ownership current as of: 1/20/2026     Tax Year: 2026
REID 0426181892000

PIN # 0426-18-1892

Location Address Property Description
1413 SKYCREST DR GLENDALE ACRES LO:5 SE:01 BL:F PL:0024-0063
   
Property Owner Owner's Mailing Address
GRICE, MARIE DAVIS
1413 SKYCREST DR
FAYETTEVILLE NC 28304
Parcel
Buildings
Misc Improvements
Land
Deeds
Documents
Notes
Sales
Sales Comparison
Photos
Building Location Address
1413 SKYCREST DR
Building Description
R1-SINGLE-FAMILY-RES
Card   of  1
Bldg Type R1-SINGLE-FAMILY-RES
Units 0
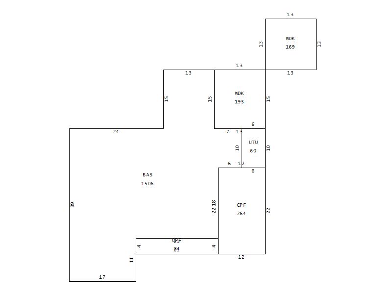
Living Area (SQFT) 1506
Number of Stories 1.00
Style 000002-STYLE
Foundation G-PIERS-W/CNTFWL
Frame CONSTANT
Exterior 11-BRICK-VENEER
Const Type
Heating M-07&S-01
Air Cond AC-Y
Plumbing Baths (Full):   1
Baths (Half):   1
Extra Fixtures:   0
Total Plumbing Fixtures:   5 
Bedrooms 3
Floor 11-CARPET-COMB
Roof Cover 03-COMP SHINGLE
Roof Type 02-GABLE
Main Body (SQFT) 1506
Year Built 1963
Additions 5
Effective Year 1970
Remodeled 2010
Interior Adj.
Other Features
Building Total & Improvement Details

Grade 350 100%
Percentage Complete 100
Total Adjusted Replacement Cost New $185,538
Physical Depreciation (% Bad) A 35%
Depreciated Value $120,600
Economic Depreciation (% Bad) 0
Functional Depreciation (% Bad) 0
Total Depreciated Value $120,600
Market Area Factor 1.00
Building Value $120,600
Misc Improvements Value $2,036
Total Improvement Value $122,636

Assessed Land Value $40,000
   
Assessed Total Value $225,600



Addition Summary 
StoryTypeCodeArea
1.00 WOOD DECK WDK 195
1.00 WOOD DECK WDK 169
1.00 UTILITY UNFIN UTU 60
1.00 CARPORT FINISH CPF 264
1.00 OPEN PORCH FIN OPF 84
 
Other Improvements 
UnitsDescriptionItemCodeYear% BadValue
16x16 DIMENSIONS CONCRETE PATIO 1998 65 687
10x12 DIMENSIONS UTILITY FRAME 2003 65 1349
 


Building Sketch
Photograph
Building Sketch Building Photo
(Click sketch for bigger image)