Cumberland County
Building Summary

Data last updated on: 1/30/2026     Ownership current as of: 1/20/2026     Tax Year: 2026
REID 0426184373000

PIN # 0426-18-4373

Location Address Property Description
1438 HABERSHAM DR GLENDALE ACRES LO:24 SE:02 BL:F PL:0027-0003
   
Property Owner Owner's Mailing Address
SULEIMAN, MURAT
1438 HABERSHAM DRIVE
FAYETTEVILLE NC 28304
Parcel
Buildings
Misc Improvements
Land
Deeds
Documents
Notes
Sales
Sales Comparison
Photos
Building Location Address
1438 HABERSHAM DR
Building Description
R1-SINGLE-FAMILY-RES
Card   of  1
Bldg Type R1-SINGLE-FAMILY-RES
Units 0
Living Area (SQFT) 1328
Number of Stories 1.00
Style 000002-STYLE
Foundation G-PIERS-W/CNTFWL
Frame CONSTANT
Exterior 11-BRICK-VENEER
Const Type
Heating M-07&S-01
Air Cond AC-Y
Plumbing Baths (Full):   2
Baths (Half):   0
Extra Fixtures:   0
Total Plumbing Fixtures:   6 
Bedrooms 3
Floor 11-CARPET-COMB
Roof Cover 03-COMP SHINGLE
Roof Type 02-GABLE
Main Body (SQFT) 1328
Year Built 1961
Additions 3
Effective Year 1961
Remodeled 0
Interior Adj.
Other Features
Building Total & Improvement Details

Grade 350 100%
Percentage Complete 100
Total Adjusted Replacement Cost New $168,764
Physical Depreciation (% Bad) A 39%
Depreciated Value $102,946
Economic Depreciation (% Bad) 0
Functional Depreciation (% Bad) 0
Total Depreciated Value $102,946
Market Area Factor 1.00
Building Value $102,946
Misc Improvements Value $478
Total Improvement Value $103,424

Assessed Land Value $44,000
   
Assessed Total Value $224,600



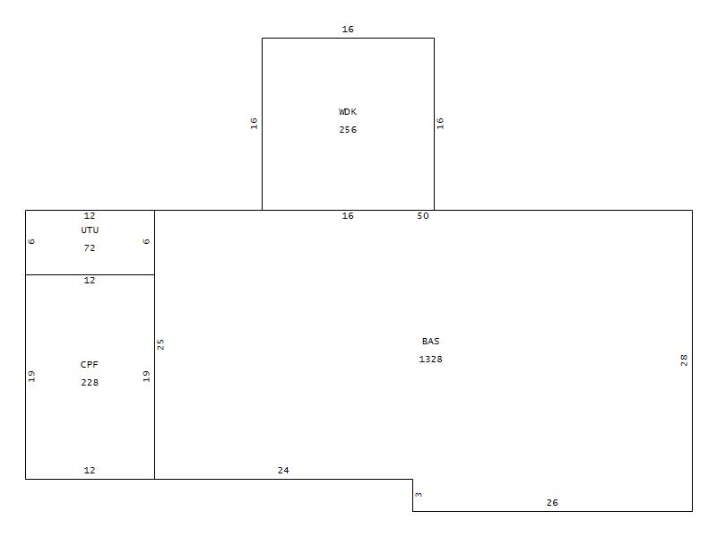
Addition Summary 
StoryTypeCodeArea
1.00 UTILITY UNFIN UTU 72
1.00 GARAGE FINISH GRF 228
1.00 WOOD DECK WDK 256
 
Other Improvements 
UnitsDescriptionItemCodeYear% BadValue
4x6 DIMENSIONS STOOP 1983 65 131
8x10 DIMENSIONS UTILITY METAL 2017 33 347
 


Building Sketch
Photograph
Building Sketch Building Photo
(Click sketch for bigger image)