Cumberland County
Building Summary

Data last updated on: 1/30/2026     Ownership current as of: 1/20/2026     Tax Year: 2026
REID 0426189593000

PIN # 0426-18-9593

Location Address Property Description
1459 HABERSHAM DR GLENDALE ACRES LO:14 SE:02 BL:G PL:0027-0003
   
Property Owner Owner's Mailing Address
CHRISTOPHER, BRIAN R
1459 HABERSHAM DR
FAYETTEVILLE NC 28304
Parcel
Buildings
Misc Improvements
Land
Deeds
Documents
Notes
Sales
Sales Comparison
Photos
Building Location Address
1459 HABERSHAM DR
Building Description
R1-SINGLE-FAMILY-RES
Card   of  1
Bldg Type R1-SINGLE-FAMILY-RES
Units 0
Living Area (SQFT) 1539
Number of Stories 1.00
Style 000002-STYLE
Foundation G-PIERS-W/CNTFWL
Frame CONSTANT
Exterior 11-BRICK-VENEER
Const Type
Heating M-07&S-01
Air Cond AC-Y
Plumbing Baths (Full):   1
Baths (Half):   1
Extra Fixtures:   0
Total Plumbing Fixtures:   5 
Bedrooms 3
Floor 11-CARPET-COMB
Roof Cover 03-COMP SHINGLE
Roof Type 02-GABLE
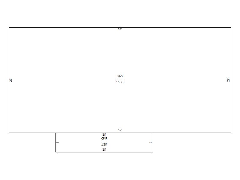
Main Body (SQFT) 1539
Year Built 1964
Additions 1
Effective Year 1978
Remodeled 0
Interior Adj.
Other Features
Building Total & Improvement Details

Grade 350 100%
Percentage Complete 100
Total Adjusted Replacement Cost New $176,283
Physical Depreciation (% Bad) A 31%
Depreciated Value $121,635
Economic Depreciation (% Bad) 0
Functional Depreciation (% Bad) 0
Total Depreciated Value $121,635
Market Area Factor 1.00
Building Value $121,635
Misc Improvements Value $3,680
Total Improvement Value $125,315

Assessed Land Value $40,000
   
Assessed Total Value $231,300



Addition Summary 
StoryTypeCodeArea
1.00 OPEN PORCH FIN OPF 125
 
Other Improvements 
UnitsDescriptionItemCodeYear% BadValue
12x18 DIMENSIONS CANOPY OVER PATIO 1983 65 1428
12X8 DIMENSIONS UTILITY FRAME 2017 27 2252
 


Building Sketch
Photograph
Building Sketch Building Photo
(Click sketch for bigger image)