Cumberland County
Building Summary

Data last updated on: 1/30/2026     Ownership current as of: 1/20/2026     Tax Year: 2026
REID 0426191877000

PIN # 0426-19-1877

Location Address Property Description
1202 CASTLEROCK DR GLENDALE ACRES LO:7 SE:03 BL:Q PL:0029-0058
   
Property Owner Owner's Mailing Address
ALLEN, SETH;HERNANDEZ, MARCIAL CRUZ
1202 CASTLEROCK DR
FAYETTEVILLE NC 28304
Parcel
Buildings
Misc Improvements
Land
Deeds
Documents
Notes
Sales
Sales Comparison
Photos
Building Location Address
1202 CASTLEROCK DR
Building Description
R1-SINGLE-FAMILY-RES
Card   of  1
Bldg Type R1-SINGLE-FAMILY-RES
Units 0
Living Area (SQFT) 1482
Number of Stories 1.00
Style 000002-STYLE
Foundation G-PIERS-W/CNTFWL
Frame CONSTANT
Exterior 11-BRICK-VENEER
Const Type
Heating M-07&S-01
Air Cond AC-Y
Plumbing Baths (Full):   2
Baths (Half):   0
Extra Fixtures:   0
Total Plumbing Fixtures:   6 
Bedrooms 3
Floor 09-HARDWD-PARQUE
Roof Cover 03-COMP SHINGLE
Roof Type 02-GABLE
Main Body (SQFT) 1482
Year Built 1968
Additions 2
Effective Year 1968
Remodeled 0
Interior Adj.
Other Features
Building Total & Improvement Details

Grade 350 100%
Percentage Complete 100
Total Adjusted Replacement Cost New $174,019
Physical Depreciation (% Bad) A 35%
Depreciated Value $113,112
Economic Depreciation (% Bad) 0
Functional Depreciation (% Bad) 0
Total Depreciated Value $113,112
Market Area Factor 1.00
Building Value $113,112
Misc Improvements Value $1,364
Total Improvement Value $114,476

Assessed Land Value $40,000
   
Assessed Total Value $220,600



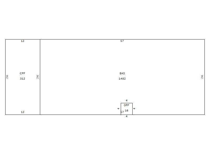
Addition Summary 
StoryTypeCodeArea
1.00 CARPORT FINISH CPF 312
1.00 OPEN PORCH FIN OPF 16
 
Other Improvements 
UnitsDescriptionItemCodeYear% BadValue
8x8 DIMENSIONS UTILITY FRAME 1983 65 720
12x20 DIMENSIONS CONCRETE PATIO 1983 65 644
 


Building Sketch
Photograph
Building Sketch Building Photo
(Click sketch for bigger image)