Cumberland County
Building Summary

Data last updated on: 1/30/2026     Ownership current as of: 1/20/2026     Tax Year: 2026
REID 0426193339000

PIN # 0426-19-3339

Location Address Property Description
2903 PLAYER AVE GLENDALE ACRES LO:20 SE:03 BL:E PL:0029-0058
   
Property Owner Owner's Mailing Address
FOWLER, ELLEN M
2903 PLAYER AVE
FAYETTEVILLE NC 28304
Parcel
Buildings
Misc Improvements
Land
Deeds
Documents
Notes
Sales
Sales Comparison
Photos
Building Location Address
2903 PLAYER AVE
Building Description
R1-SINGLE-FAMILY-RES
Card   of  1
Bldg Type R1-SINGLE-FAMILY-RES
Units 0
Living Area (SQFT) 1736
Number of Stories 2.00
Style 000002-STYLE
Foundation G-PIERS-W/CNTFWL
Frame CONSTANT
Exterior 12-BRICK/WOOD
Const Type
Heating M-07&S-01
Air Cond AC-Y
Plumbing Baths (Full):   2
Baths (Half):   1
Extra Fixtures:   0
Total Plumbing Fixtures:   8 
Bedrooms 3
Floor 09-HARDWD-PARQUE
Roof Cover 03-COMP SHINGLE
Roof Type 02-GABLE
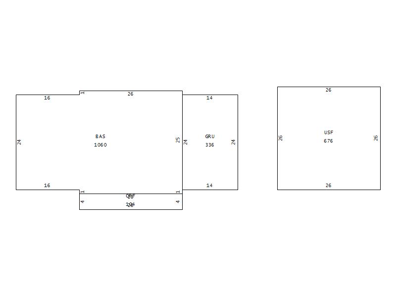
Main Body (SQFT) 1060
Year Built 1967
Additions 3
Effective Year 1975
Remodeled 0
Interior Adj.
Other Features
Building Total & Improvement Details

Grade 350 100%
Percentage Complete 100
Total Adjusted Replacement Cost New $198,924
Physical Depreciation (% Bad) A 33%
Depreciated Value $133,279
Economic Depreciation (% Bad) 0
Functional Depreciation (% Bad) 0
Total Depreciated Value $133,279
Market Area Factor 1.00
Building Value $133,279
Misc Improvements Value $19,547
Total Improvement Value $152,826

Assessed Land Value $40,000
   
Assessed Total Value $288,500



Addition Summary 
StoryTypeCodeArea
1.00 OPEN PORCH FIN OPF 104
1.00 GARAGE UNFIN GRU 336
1.00 UPPER STY FIN USF 676
 
Other Improvements 
UnitsDescriptionItemCodeYear% BadValue
4x5 DIMENSIONS STOOP 1983 65 109
6x41 DIMENSIONS CONCRETE PATIO 2006 65 660
12x16 DIMENSIONS UTILITY FRAME 2005 57 2653
1 UNITS SWIMMING POOL 2006 55 13055
16x16 DIMENSIONS CANOPY OVER PATIO 2021 20 3070
 


Building Sketch
Photograph
Building Sketch Building Photo
(Click sketch for bigger image)