Cumberland County
Building Summary

Data last updated on: 1/29/2026     Ownership current as of: 1/20/2026     Tax Year: 2026
REID 0426195078000

PIN # 0426-19-5078

Location Address Property Description
2813 HERMITAGE AVE GLENDALE ACRES LO:2 SE:03 BL:G PL:0029-0058
   
Property Owner Owner's Mailing Address
LOZANO, ADAM JOSEPH;LOZANO, TARYN JANSEN
2813 HERMITAGE AVE
FAYETTEVILLE NC 28304
Parcel
Buildings
Misc Improvements
Land
Deeds
Documents
Notes
Sales
Sales Comparison
Photos
Building Location Address
2813 HERMITAGE AVE
Building Description
R1-SINGLE-FAMILY-RES
Card   of  1
Bldg Type R1-SINGLE-FAMILY-RES
Units 0
Living Area (SQFT) 1842
Number of Stories 2.00
Style 000002-STYLE
Foundation G-PIERS-W/CNTFWL
Frame CONSTANT
Exterior 11-BRICK-VENEER
Const Type
Heating M-07&S-01
Air Cond AC-Y
Plumbing Baths (Full):   2
Baths (Half):   1
Extra Fixtures:   0
Total Plumbing Fixtures:   8 
Bedrooms 3
Floor 11-CARPET-COMB
Roof Cover 03-COMP SHINGLE
Roof Type 02-GABLE
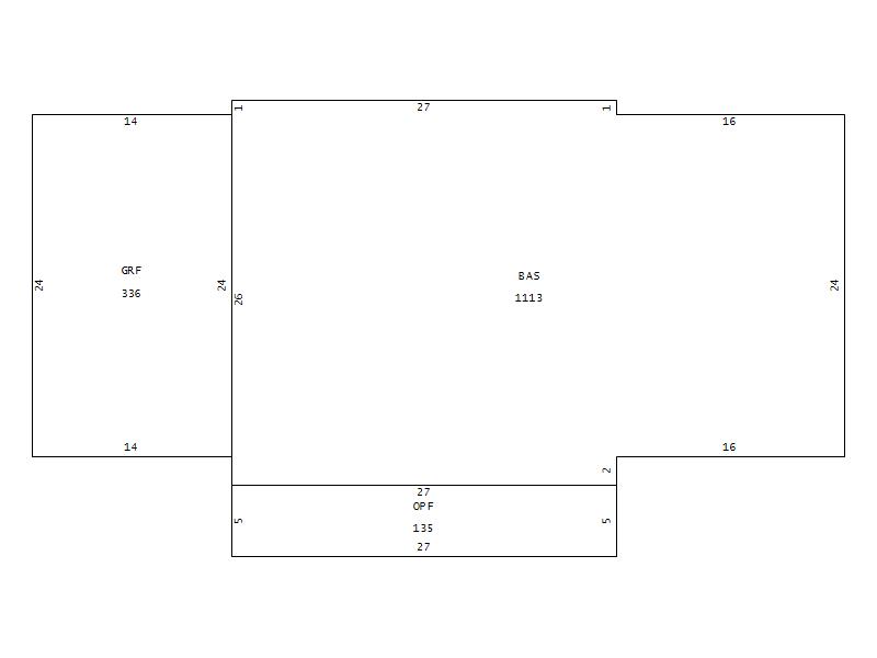
Main Body (SQFT) 1113
Year Built 1971
Additions 3
Effective Year 1977
Remodeled 0
Interior Adj.
Other Features
Building Total & Improvement Details

Grade 350 100%
Percentage Complete 100
Total Adjusted Replacement Cost New $213,236
Physical Depreciation (% Bad) A 32%
Depreciated Value $145,000
Economic Depreciation (% Bad) 0
Functional Depreciation (% Bad) 0
Total Depreciated Value $145,000
Market Area Factor 1.00
Building Value $145,000
Misc Improvements Value $564
Total Improvement Value $145,564

Assessed Land Value $40,000
   
Assessed Total Value $248,600



Addition Summary 
StoryTypeCodeArea
1.00 GARAGE UNFIN GRU 336
1.00 OPEN PORCH FIN OPF 135
1.00 UPPER STY FIN USF 729
 
Other Improvements 
UnitsDescriptionItemCodeYear% BadValue
14x15 DIMENSIONS CONCRETE PATIO 1983 65 564
 


Building Sketch
Photograph
Building Sketch Building Photo
(Click sketch for bigger image)