Cumberland County
Building Summary

Data last updated on: 2/28/2026     Ownership current as of: 2/27/2026     Tax Year: 2026
REID 0426213381000

PIN # 0426-21-3381

Location Address Property Description
2206 REDSTONE DR BRIDGES & BREWINGTON LO:5 SE:01 PL:0094-0028
   
Property Owner Owner's Mailing Address
BLAKE, CALVIN;BLAKE, DIANE
2206 REDSTONE DR
FAYETTEVILLE NC 28306
Parcel
Buildings
Misc Improvements
Land
Deeds
Documents
Notes
Sales
Sales Comparison
Photos
Building Location Address
2206 REDSTONE DR
Building Description
R1-SINGLE-FAMILY-RES
Card   of  1
Bldg Type R1-SINGLE-FAMILY-RES
Units 0
Living Area (SQFT) 1800
Number of Stories 1.00
Style 000002-STYLE
Foundation G-PIERS-W/CNTFWL
Frame CONSTANT
Exterior 11-BRICK-VENEER
Const Type
Heating M-07&S-01
Air Cond AC-Y
Plumbing Baths (Full):   1
Baths (Half):   1
Extra Fixtures:   0
Total Plumbing Fixtures:   5 
Bedrooms 3
Roof Cover 02-METAL ROOF
Roof Type 02-GABLE
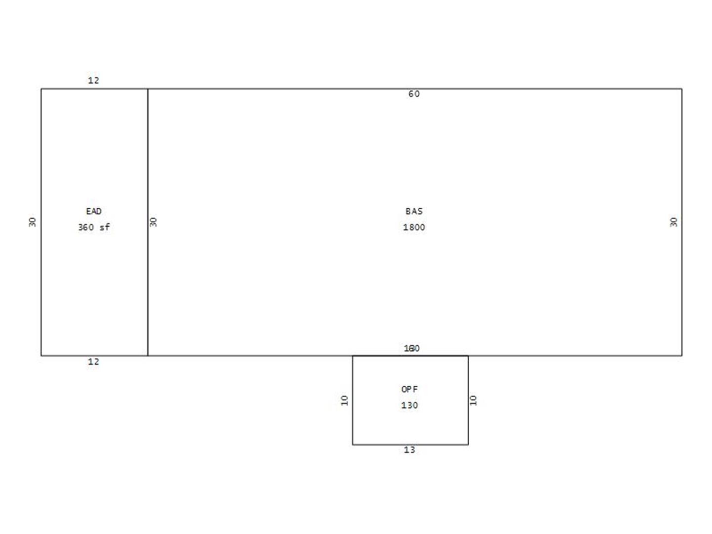
Main Body (SQFT) 1800
Year Built 1971
Additions 2
Effective Year 1990
Remodeled 2008
Interior Adj.
Other Features
Building Total & Improvement Details

Grade 350 100%
Percentage Complete 100
Total Adjusted Replacement Cost New $218,280
Physical Depreciation (% Bad) A 25%
Depreciated Value $163,710
Economic Depreciation (% Bad) 0
Functional Depreciation (% Bad) 0
Total Depreciated Value $163,710
Market Area Factor 1.00
Building Value $163,710
Misc Improvements Value $430
Total Improvement Value $164,140

Assessed Land Value $7,000
   
Assessed Total Value $213,200



Addition Summary 
StoryTypeCodeArea
1.00 GRF/CPF CONVER EAD 360
1.00 OPEN PORCH FIN OPF 130
 
Other Improvements 
UnitsDescriptionItemCodeYear% BadValue
10x8 DIMENSIONS UTILITY METAL 2022 17 430
 


Building Sketch
Photograph
Building Sketch Building Photo
(Click sketch for bigger image)