Cumberland County
Building Summary

Data last updated on: 1/30/2026     Ownership current as of: 1/20/2026     Tax Year: 2026
REID 0426280574000

PIN # 0426-28-0574

Location Address Property Description
1463 HABERSHAM DR GLENDALE ACRES LO:15 SE:02 BL:G PL:0027-0003
   
Property Owner Owner's Mailing Address
BOWLES, MATTHEW DEAN
1463 HABERSHAM DR
FAYETTEVILLE NC 28304
Parcel
Buildings
Misc Improvements
Land
Deeds
Documents
Notes
Sales
Sales Comparison
Photos
Building Location Address
1463 HABERSHAM DR
Building Description
R1-SINGLE-FAMILY-RES
Card   of  1
Bldg Type R1-SINGLE-FAMILY-RES
Units 0
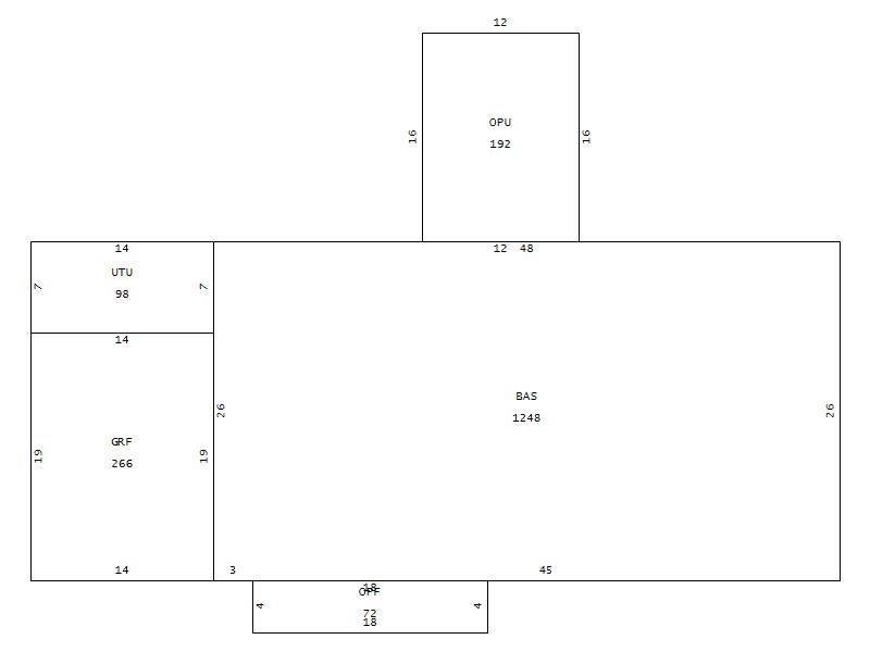
Living Area (SQFT) 1248
Number of Stories 1.00
Style 000002-STYLE
Foundation G-PIERS-W/CNTFWL
Frame CONSTANT
Exterior 11-BRICK-VENEER
Const Type
Heating M-07&S-01
Air Cond AC-Y
Plumbing Baths (Full):   2
Baths (Half):   0
Extra Fixtures:   0
Total Plumbing Fixtures:   6 
Bedrooms 3
Floor 09-HARDWD-PARQUE
Roof Cover 03-COMP SHINGLE
Roof Type 02-GABLE
Main Body (SQFT) 1248
Year Built 1965
Additions 4
Effective Year 1965
Remodeled 0
Interior Adj.
Other Features
Building Total & Improvement Details

Grade 350 100%
Percentage Complete 100
Total Adjusted Replacement Cost New $163,979
Physical Depreciation (% Bad) A 37%
Depreciated Value $103,307
Economic Depreciation (% Bad) 0
Functional Depreciation (% Bad) 0
Total Depreciated Value $103,307
Market Area Factor 1.00
Building Value $103,307
Misc Improvements Value $2,159
Total Improvement Value $105,466

Assessed Land Value $40,000
   
Assessed Total Value $213,800



Addition Summary 
StoryTypeCodeArea
1.00 UTILITY UNFIN UTU 98
1.00 GARAGE FINISH GRF 266
1.00 OPEN PORCH FIN OPF 72
1.00 OPEN POR UNFIN OPU 192
 
Other Improvements 
UnitsDescriptionItemCodeYear% BadValue
12x14 DIMENSIONS UTILITY FRAME 2004 60 2159
 


Building Sketch
Photograph
Building Sketch Building Photo
(Click sketch for bigger image)