Cumberland County
Building Summary

Data last updated on: 1/30/2026     Ownership current as of: 1/20/2026     Tax Year: 2026
REID 0426284042000

PIN # 0426-28-4042

Location Address Property Description
2823 SKYCREST DR GLENDALE ACRES LO:20 SE:02 BL:N PL:0027-0003
   
Property Owner Owner's Mailing Address
MORIN, TIFFANI
2823 SKYCREST DR
FAYETTEVILLE NC 28304
Parcel
Buildings
Misc Improvements
Land
Deeds
Documents
Notes
Sales
Sales Comparison
Photos
Building Location Address
2823 SKYCREST DR
Building Description
R1-SINGLE-FAMILY-RES
Card   of  1
Bldg Type R1-SINGLE-FAMILY-RES
Units 0
Living Area (SQFT) 1136
Number of Stories 1.00
Style 000002-STYLE
Foundation G-PIERS-W/CNTFWL
Frame CONSTANT
Exterior 12-BRICK/WOOD
Const Type
Heating M-07&S-01
Air Cond AC-Y
Plumbing Baths (Full):   2
Baths (Half):   0
Extra Fixtures:   1
Total Plumbing Fixtures:   7 
Bedrooms 3
Floor 09-HARDWD-PARQUE
Roof Cover 03-COMP SHINGLE
Roof Type 02-GABLE
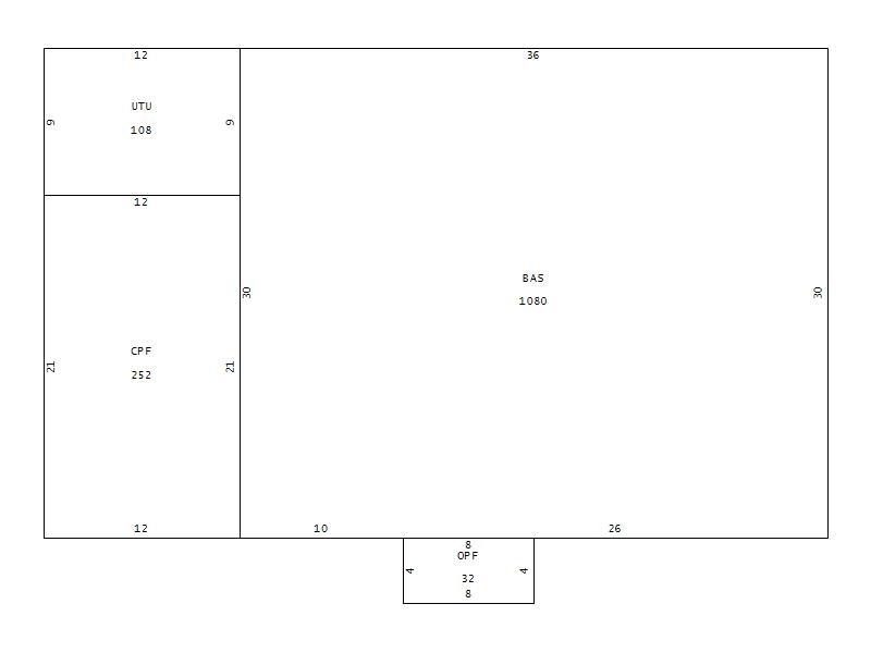
Main Body (SQFT) 1080
Year Built 1965
Additions 4
Effective Year 1980
Remodeled 0
Interior Adj.
Other Features
Building Total & Improvement Details

Grade 350 100%
Percentage Complete 100
Total Adjusted Replacement Cost New $136,745
Physical Depreciation (% Bad) A 30%
Depreciated Value $95,722
Economic Depreciation (% Bad) 0
Functional Depreciation (% Bad) 0
Total Depreciated Value $95,722
Market Area Factor 1.00
Building Value $95,722
Misc Improvements Value $3,269
Total Improvement Value $98,991

Assessed Land Value $40,000
   
Assessed Total Value $218,200



Addition Summary 
StoryTypeCodeArea
1.00 UTILITY UNFIN UTU 40
1.00 CARPORT FINISH CPF 264
1.00 OPEN PORCH FIN OPF 32
1.00 BASE SEMI FIN BSF 56
 
Other Improvements 
UnitsDescriptionItemCodeYear% BadValue
15x25 DIMENSIONS CONCRETE PATIO 1983 65 1007
8x10 DIMENSIONS UTILITY FRAME 2023 12 2262
 


Building Sketch
Photograph
Building Sketch Building Photo
(Click sketch for bigger image)