Cumberland County
Building Summary

Data last updated on: 1/30/2026     Ownership current as of: 1/20/2026     Tax Year: 2026
REID 0426288271000

PIN # 0426-28-8271

Location Address Property Description
2809 SKYCREST DR GLENDALE ACRES LO:10 SE:02 BL:L PL:0027-0003
   
Property Owner Owner's Mailing Address
DEBOSE, LASONYA T
2809 SKYCREST DR
FAYETTEVILLE NC 28304
Parcel
Buildings
Misc Improvements
Land
Deeds
Documents
Notes
Sales
Sales Comparison
Photos
Building Location Address
2809 SKYCREST DR
Building Description
R1-SINGLE-FAMILY-RES
Card   of  1
Bldg Type R1-SINGLE-FAMILY-RES
Units 0
Living Area (SQFT) 1506
Number of Stories 1.00
Style 000002-STYLE
Foundation G-PIERS-W/CNTFWL
Frame CONSTANT
Exterior 11-BRICK-VENEER
Const Type
Heating M-07&S-01
Air Cond AC-Y
Plumbing Baths (Full):   2
Baths (Half):   0
Extra Fixtures:   0
Total Plumbing Fixtures:   6 
Bedrooms 4
Floor 09-HARDWD-PARQUE
Roof Cover 03-COMP SHINGLE
Roof Type 02-GABLE
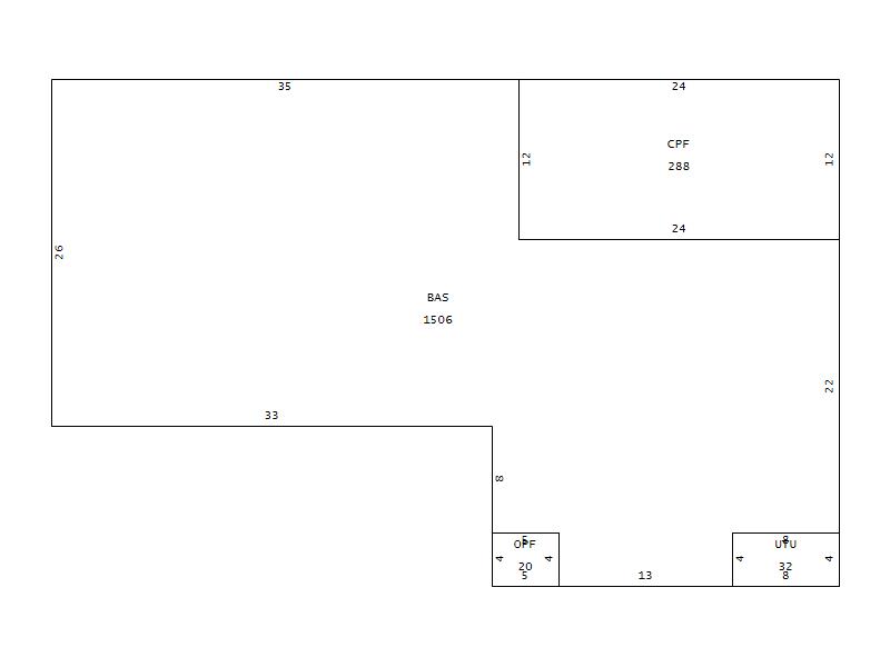
Main Body (SQFT) 1506
Year Built 1965
Additions 3
Effective Year 1965
Remodeled 0
Interior Adj.
Other Features
Building Total & Improvement Details

Grade 350 100%
Percentage Complete 100
Total Adjusted Replacement Cost New $175,464
Physical Depreciation (% Bad) A 37%
Depreciated Value $110,542
Economic Depreciation (% Bad) 0
Functional Depreciation (% Bad) 0
Total Depreciated Value $110,542
Market Area Factor 1.00
Building Value $110,542
Misc Improvements Value $461
Total Improvement Value $111,003

Assessed Land Value $40,000
   
Assessed Total Value $215,900



Addition Summary 
StoryTypeCodeArea
1.00 OPEN PORCH FIN OPF 20
1.00 UTILITY UNFIN UTU 32
1.00 CARPORT FINISH CPF 288
 
Other Improvements 
UnitsDescriptionItemCodeYear% BadValue
8x10 DIMENSIONS UTILITY METAL 2025 11 461
 


Building Sketch
Photograph
Building Sketch Building Photo
(Click sketch for bigger image)