Cumberland County
Building Summary

Data last updated on: 1/12/2026     Ownership current as of: 1/7/2026     Tax Year: 2026
REID 0426358858000

PIN # 0426-35-8858

Location Address Property Description
1828 NOTRE DAME PL BRIARWOOD HILLS LO: 44 SE:01 PL:0026-0043
   
Property Owner Owner's Mailing Address
MCELYEA, BENJAMIN
1828 NOTRE DAME PL
FAYETTEVILLE NC 28304
Parcel
Buildings
Misc Improvements
Land
Deeds
Documents
Notes
Sales
Sales Comparison
Photos
Building Location Address
1828 NOTRE DAME PL
Building Description
R1-SINGLE-FAMILY-RES
Card   of  1
Bldg Type R1-SINGLE-FAMILY-RES
Units 0
Living Area (SQFT) 1575
Number of Stories 1.00
Style 000002-STYLE
Foundation G-PIERS-W/CNTFWL
Frame CONSTANT
Exterior 12-BRICK/WOOD
Const Type
Heating M-07&S-01
Air Cond AC-Y
Plumbing Baths (Full):   2
Baths (Half):   0
Extra Fixtures:   0
Total Plumbing Fixtures:   6 
Bedrooms 3
Floor 11-CARPET-COMB
Roof Cover 03-COMP SHINGLE
Roof Type 02-GABLE
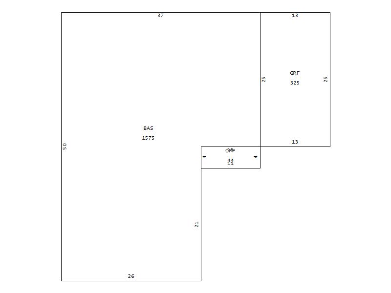
Main Body (SQFT) 1575
Year Built 1968
Additions 2
Effective Year 1968
Remodeled 0
Interior Adj.
Other Features
Building Total & Improvement Details

Grade 370 108%
Percentage Complete 100
Total Adjusted Replacement Cost New $201,282
Physical Depreciation (% Bad) A 35%
Depreciated Value $130,833
Economic Depreciation (% Bad) 0
Functional Depreciation (% Bad) 0
Total Depreciated Value $130,833
Market Area Factor 1.00
Building Value $130,833
Misc Improvements Value $966
Total Improvement Value $131,799

Assessed Land Value $70,000
   
Assessed Total Value $253,600



Addition Summary 
StoryTypeCodeArea
1.00 OPEN PORCH FIN OPF 44
1.00 GARAGE FINISH GRF 325
 
Other Improvements 
UnitsDescriptionItemCodeYear% BadValue
8x45 DIMENSIONS CONCRETE PATIO 1983 65 966
 


Building Sketch
Photograph
Building Sketch Building Photo
(Click sketch for bigger image)