Cumberland County
Building Summary

Data last updated on: 1/12/2026     Ownership current as of: 1/7/2026     Tax Year: 2026
REID 0426367336000

PIN # 0426-36-7336

Location Address Property Description
2635 TORCROSS DR BRIARWOOD HILLS LO:11 SE:10 PL:0043-0070
   
Property Owner Owner's Mailing Address
REYES-ARROYO, ALEJANDRO
2635 TORCROSS DR
FAYETTEVILLE NC 28304
Parcel
Buildings
Misc Improvements
Land
Deeds
Documents
Notes
Sales
Sales Comparison
Photos
Building Location Address
2635 TORCROSS DR
Building Description
R1-SINGLE-FAMILY-RES
Card   of  1
Bldg Type R1-SINGLE-FAMILY-RES
Units 0
Living Area (SQFT) 1780
Number of Stories 1.00
Style 000002-STYLE
Foundation G-PIERS-W/CNTFWL
Frame CONSTANT
Exterior 05-DELUX-WOOD-SIDING
Const Type
Heating M-07&S-02
Air Cond AC-Y
Plumbing Baths (Full):   2
Baths (Half):   0
Extra Fixtures:   1
Total Plumbing Fixtures:   7 
Bedrooms 3
Floor 11-CARPET-COMB
Roof Cover 03-COMP SHINGLE
Roof Type 02-GABLE
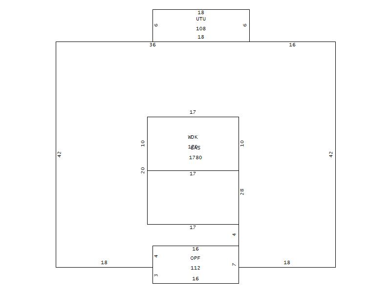
Main Body (SQFT) 1780
Year Built 1976
Additions 3
Effective Year 1985
Remodeled 2015
Interior Adj.
Other Features
Building Total & Improvement Details

Grade 370 108%
Percentage Complete 100
Total Adjusted Replacement Cost New $215,670
Physical Depreciation (% Bad) A 28%
Depreciated Value $155,282
Economic Depreciation (% Bad) 0
Functional Depreciation (% Bad) 0
Total Depreciated Value $155,282
Market Area Factor 1.00
Building Value $155,282
Misc Improvements Value
Total Improvement Value $155,282

Assessed Land Value $70,000
   
Assessed Total Value $273,100



Addition Summary 
StoryTypeCodeArea
1.00 UTILITY UNFIN UTU 108
1.00 OPEN PORCH FIN OPF 112
1.00 WOOD DECK WDK 170
 
Other Improvements 
 


Building Sketch
Photograph
Building Sketch Building Photo
(Click sketch for bigger image)