Cumberland County
Building Summary

Data last updated on: 1/12/2026     Ownership current as of: 1/7/2026     Tax Year: 2026
REID 0426368296000

PIN # 0426-36-8296

Location Address Property Description
2630 DARTMOUTH DR CLAIRWAY & BRIARWOOD HILLS RECOMB LO:8 SE:01 PL:0095-0027
   
Property Owner Owner's Mailing Address
SMILING, MICHAEL CALEB;SMILING, KEELEY ANN
2630 DARTMOUTH DR
FAYETTEVILLE NC 28304
Parcel
Buildings
Misc Improvements
Land
Deeds
Documents
Notes
Sales
Sales Comparison
Photos
Building Location Address
2630 DARTMOUTH DR
Building Description
R1-SINGLE-FAMILY-RES
Card   of  1
Bldg Type R1-SINGLE-FAMILY-RES
Units 0
Living Area (SQFT) 1910
Number of Stories 1.00
Style 000002-STYLE
Foundation G-PIERS-W/CNTFWL
Frame CONSTANT
Exterior 11-BRICK-VENEER
Const Type
Heating M-07&S-01
Air Cond AC-Y
Plumbing Baths (Full):   2
Baths (Half):   0
Extra Fixtures:   0
Total Plumbing Fixtures:   6 
Bedrooms 3
Floor 09-HARDWD-PARQUE
Roof Cover 03-COMP SHINGLE
Roof Type 02-GABLE
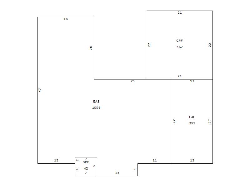
Main Body (SQFT) 1559
Year Built 1963
Additions 3
Effective Year 1963
Remodeled 0
Interior Adj.
Other Features
Building Total & Improvement Details

Grade 370 108%
Percentage Complete 100
Total Adjusted Replacement Cost New $230,627
Physical Depreciation (% Bad) A 38%
Depreciated Value $142,989
Economic Depreciation (% Bad) 0
Functional Depreciation (% Bad) 0
Total Depreciated Value $142,989
Market Area Factor 1.00
Building Value $142,989
Misc Improvements Value $5,189
Total Improvement Value $148,178

Assessed Land Value $70,000
   
Assessed Total Value $266,700



Addition Summary 
StoryTypeCodeArea
1.00 OPEN PORCH FIN OPF 42
1.00 ENCL AREA AVER EAC 351
1.00 CARPORT FINISH CPF 462
 
Other Improvements 
UnitsDescriptionItemCodeYear% BadValue
17x22 DIMENSIONS CONCRETE PATIO 1983 65 1004
12x12 DIMENSIONS UTILITY FRAME 1992 65 2510
6x12 DIMENSIONS OPEN POR FIN 1992 65 899
6x12 DIMENSIONS DECK WOOD 1992 65 776
 


Building Sketch
Photograph
Building Sketch Building Photo
(Click sketch for bigger image)