Cumberland County
Building Summary

Data last updated on: 1/27/2026     Ownership current as of: 1/20/2026     Tax Year: 2026
REID 0426452062000

PIN # 0426-45-2062

Location Address Property Description
2625 COLGATE DR BRIARWOOD HILLS LO:108 SE:02 PL:0027-0005
   
Property Owner Owner's Mailing Address
ALLEN, JONATHAN KOONCE
2625 COLGATE DR
FAYETTEVILLE NC 28304
Parcel
Buildings
Misc Improvements
Land
Deeds
Documents
Notes
Sales
Sales Comparison
Photos
Building Location Address
2625 COLGATE DR
Building Description
R1-SINGLE-FAMILY-RES
Card   of  1
Bldg Type R1-SINGLE-FAMILY-RES
Units 0
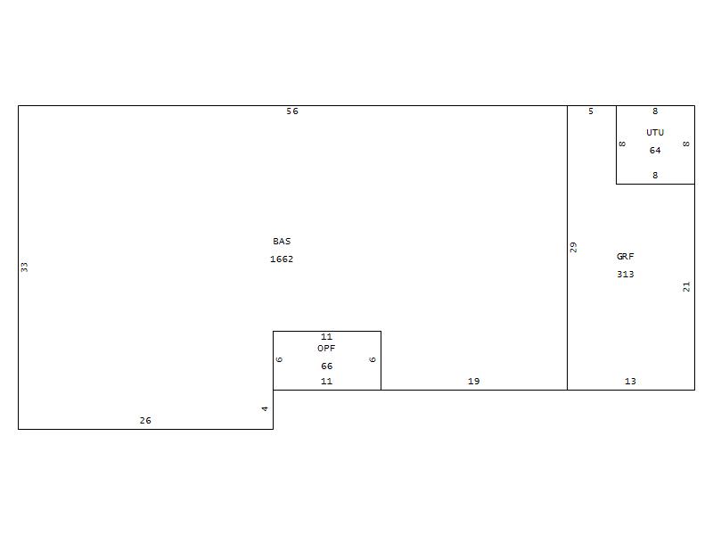
Living Area (SQFT) 1662
Number of Stories 1.00
Style 000002-STYLE
Foundation G-PIERS-W/CNTFWL
Frame CONSTANT
Exterior 12-BRICK/WOOD
Const Type
Heating M-07&S-01
Air Cond AC-Y
Plumbing Baths (Full):   2
Baths (Half):   0
Extra Fixtures:   0
Total Plumbing Fixtures:   6 
Bedrooms 3
Floor 11-CARPET-COMB
Roof Cover 03-COMP SHINGLE
Roof Type 02-GABLE
Main Body (SQFT) 1662
Year Built 1964
Additions 3
Effective Year 1969
Remodeled 0
Interior Adj.
Other Features
Building Total & Improvement Details

Grade 370 108%
Percentage Complete 100
Total Adjusted Replacement Cost New $207,798
Physical Depreciation (% Bad) A 35%
Depreciated Value $135,069
Economic Depreciation (% Bad) 0
Functional Depreciation (% Bad) 0
Total Depreciated Value $135,069
Market Area Factor 1.00
Building Value $135,069
Misc Improvements Value $1,944
Total Improvement Value $137,013

Assessed Land Value $70,000
   
Assessed Total Value $251,600



Addition Summary 
StoryTypeCodeArea
1.00 OPEN PORCH FIN OPF 66
1.00 GARAGE FINISH GRF 313
1.00 UTILITY UNFIN UTU 64
 
Other Improvements 
UnitsDescriptionItemCodeYear% BadValue
4x7 DIMENSIONS STOOP 1983 65 153
5x4 DIMENSIONS STOOP 1983 65 109
15x20 DIMENSIONS CONCRETE PATIO 1983 65 805
10x10 DIMENSIONS UTILITY FRAME 1983 65 877
 


Building Sketch
Photograph
Building Sketch Building Photo
(Click sketch for bigger image)