Cumberland County
Building Summary

Data last updated on: 1/12/2026     Ownership current as of: 1/7/2026     Tax Year: 2026
REID 0426460017000

PIN # 0426-46-0017

Location Address Property Description
1823 NOTRE DAME PL BRIARWOOD HILLS RECOMB LO:24A PL:0131-0012
   
Property Owner Owner's Mailing Address
COURTER, IAN JAMES;COURTER, LISA ANNE
1823 NOTRE DAME PL
FAYETTEVILLE NC 28304

Value subject to change, property assessment under review

Parcel
Buildings
Misc Improvements
Land
Deeds
Documents
Notes
Sales
Photos
Building Location Address
1823 NOTRE DAME PL
Building Description
R1-SINGLE-FAMILY-RES
Card   of  1
Bldg Type R1-SINGLE-FAMILY-RES
Units 0
Living Area (SQFT) 2524
Number of Stories 1.75
Style 000002-STYLE
Foundation G-PIERS-W/CNTFWL
Frame CONSTANT
Exterior 11-BRICK-VENEER
Const Type
Heating M-07&S-01
Air Cond AC-Y
Plumbing Baths (Full):   2
Baths (Half):   1
Extra Fixtures:   1
Total Plumbing Fixtures:   9 
Bedrooms 3
Floor 11-CARPET-COMB
Roof Cover 03-COMP SHINGLE
Roof Type 02-GABLE
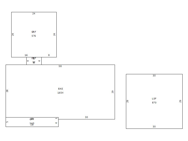
Main Body (SQFT) 1654
Year Built 1964
Additions 4
Effective Year 1970
Remodeled 1994
Interior Adj.
Other Features
Building Total & Improvement Details

Grade 370 108%
Percentage Complete 100
Total Adjusted Replacement Cost New
Physical Depreciation (% Bad) A 35%
Depreciated Value
Economic Depreciation (% Bad) 0
Functional Depreciation (% Bad) 0
Total Depreciated Value
Market Area Factor 1.00
Building Value
Misc Improvements Value
Total Improvement Value

Assessed Land Value
   
Assessed Total Value



Addition Summary 
StoryTypeCodeArea
1.00 OPEN PORCH FIN OPF 140
1.00 OPEN PORCH FIN OPF 32
1.00 GARAGE FINISH GRF 576
1.00 LOWER STY FIN LSF 870
 
Other Improvements 
UnitsDescriptionItemCodeYear% BadValue
4x4 DIMENSIONS STOOP 2010 57
4x5 DIMENSIONS STOOP 2010 57
16x20 DIMENSIONS CONCRETE PATIO 2010 57
8x10 DIMENSIONS UTILITY FRAME 2012 40
 


Building Sketch
Photograph
Building Sketch Building Photo
(Click sketch for bigger image)