Cumberland County
Building Summary

Data last updated on: 1/12/2026     Ownership current as of: 1/7/2026     Tax Year: 2026
REID 0426553846000

PIN # 0426-55-3846

Location Address Property Description
2510 ELMHURST DR BRIARWOOD HILLS LO:153 SE:03 PL:0029-0051
   
Property Owner Owner's Mailing Address
ELLIOTT, KAYLEE BROOKE
2510 ELMHURST DR
FAYETTEVILLE NC 28304
Parcel
Buildings
Misc Improvements
Land
Deeds
Documents
Notes
Sales
Sales Comparison
Photos
Building Location Address
2510 ELMHURST DR
Building Description
R1-SINGLE-FAMILY-RES
Card   of  1
Bldg Type R1-SINGLE-FAMILY-RES
Units 0
Living Area (SQFT) 3499
Number of Stories 1.50
Style 000002-STYLE
Foundation G-PIERS-W/CNTFWL
Frame CONSTANT
Exterior 11-BRICK-VENEER
Const Type
Heating M-07&S-01
Air Cond AC-Y
Plumbing Baths (Full):   2
Baths (Half):   1
Extra Fixtures:   0
Total Plumbing Fixtures:   8 
Bedrooms 4
Floor 09-HARDWD-PARQUE
Roof Cover 03-COMP SHINGLE
Roof Type 02-GABLE
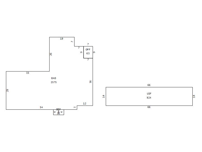
Main Body (SQFT) 2575
Year Built 1965
Additions 3
Effective Year 1965
Remodeled 0
Interior Adj.
Other Features
Building Total & Improvement Details

Grade 370 108%
Percentage Complete 100
Total Adjusted Replacement Cost New $375,619
Physical Depreciation (% Bad) A 37%
Depreciated Value $236,640
Economic Depreciation (% Bad) 0
Functional Depreciation (% Bad) 0
Total Depreciated Value $236,640
Market Area Factor 1.00
Building Value $236,640
Misc Improvements Value $1,164
Total Improvement Value $237,804

Assessed Land Value $70,000
   
Assessed Total Value $354,000



Addition Summary 
StoryTypeCodeArea
1.00 OPEN PORCH FIN OPF 63
1.00 OPEN PORCH FIN OPF 32
1.00 UPPER STY FIN USF 924
 
Other Improvements 
UnitsDescriptionItemCodeYear% BadValue
3x4 DIMENSIONS STOOP 1983 65 65
4x5 DIMENSIONS STOOP 1983 65 109
12x28 DIMENSIONS GREENHOUSE 1983 65 990
 


Building Sketch
Photograph
Building Sketch Building Photo
(Click sketch for bigger image)