Cumberland County
Building Summary

Data last updated on: 1/12/2026     Ownership current as of: 1/7/2026     Tax Year: 2026
REID 0426652212000

PIN # 0426-65-2212

Location Address Property Description
2415 COLGATE DR BRIARWOOD HILLS LO:217 SE:04 PL:0030-0059
   
Property Owner Owner's Mailing Address
HARDWICK, ZACHARY;HARDWICK, ALEXANDRA
2415 COLGATE DR
FAYETTEVILLE NC 28304
Parcel
Buildings
Misc Improvements
Land
Deeds
Documents
Notes
Sales
Sales Comparison
Photos
Building Location Address
2415 COLGATE DR
Building Description
R1-SINGLE-FAMILY-RES
Card   of  1
Bldg Type R1-SINGLE-FAMILY-RES
Units 0
Living Area (SQFT) 2262
Number of Stories 1.75
Style 000002-STYLE
Foundation C-COMBO/SLAB/CSP
Frame CONSTANT
Exterior 04-VINYL-SIDING
Const Type
Heating M-07&S-01
Air Cond AC-Y
Plumbing Baths (Full):   2
Baths (Half):   1
Extra Fixtures:   0
Total Plumbing Fixtures:   8 
Bedrooms 3
Floor 04-ASPHALT-TILE
Roof Cover 03-COMP SHINGLE
Roof Type 02-GABLE
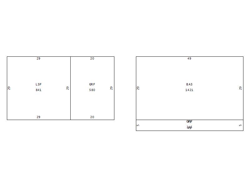
Main Body (SQFT) 1421
Year Built 1969
Additions 3
Effective Year 1969
Remodeled 0
Interior Adj.
Other Features
Building Total & Improvement Details

Grade 370 108%
Percentage Complete 100
Total Adjusted Replacement Cost New $284,116
Physical Depreciation (% Bad) F 55%
Depreciated Value $127,852
Economic Depreciation (% Bad) 0
Functional Depreciation (% Bad) 0
Total Depreciated Value $127,852
Market Area Factor 1.00
Building Value $127,852
Misc Improvements Value $537
Total Improvement Value $128,389

Assessed Land Value $70,000
   
Assessed Total Value $274,400



Addition Summary 
StoryTypeCodeArea
1.00 OPEN PORCH FIN OPF 245
1.00 GARAGE FINISH GRF 580
1.00 LOWER STY FIN LSF 841
 
Other Improvements 
UnitsDescriptionItemCodeYear% BadValue
10x20 DIMENSIONS CONCRETE PATIO 1983 65 537
 


Building Sketch
Photograph
Building Sketch Building Photo
(Click sketch for bigger image)