Cumberland County
Building Summary

Data last updated on: 1/12/2026     Ownership current as of: 1/7/2026     Tax Year: 2026
REID 0426771752000

PIN # 0426-77-1752

Location Address Property Description
2129 ROLLING HILL RD BRIARWOOD HILLS LO:381 SE:07 PL:0039-0042
   
Property Owner Owner's Mailing Address
WESTMORELAND, GAVIN TASHUNKAWITCO;WESTMORELAND, ALYSSA
2129 ROLLING HILL RD
FAYETTEVILLE NC 28304
Parcel
Buildings
Misc Improvements
Land
Deeds
Documents
Notes
Sales
Sales Comparison
Photos
Building Location Address
2129 ROLLING HILL RD
Building Description
R1-SINGLE-FAMILY-RES
Card   of  1
Bldg Type R1-SINGLE-FAMILY-RES
Units 0
Living Area (SQFT) 1927
Number of Stories 1.00
Style 000002-STYLE
Foundation G-PIERS-W/CNTFWL
Frame CONSTANT
Exterior 12-BRICK/WOOD
Const Type
Heating M-07&S-01
Air Cond AC-Y
Plumbing Baths (Full):   3
Baths (Half):   0
Extra Fixtures:   0
Total Plumbing Fixtures:   9 
Bedrooms 4
Floor 11-CARPET-COMB
Roof Cover 03-COMP SHINGLE
Roof Type 02-GABLE
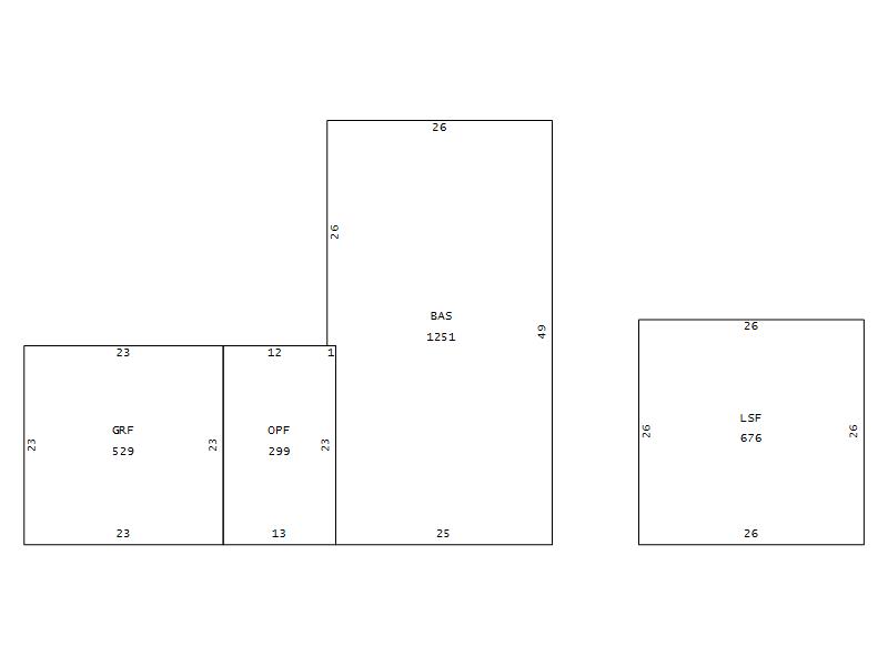
Main Body (SQFT) 1251
Year Built 1974
Additions 3
Effective Year 1984
Remodeled 0
Interior Adj.
Other Features
Building Total & Improvement Details

Grade 370 108%
Percentage Complete 100
Total Adjusted Replacement Cost New $258,065
Physical Depreciation (% Bad) A 28%
Depreciated Value $185,807
Economic Depreciation (% Bad) 0
Functional Depreciation (% Bad) 0
Total Depreciated Value $185,807
Market Area Factor 1.00
Building Value $185,807
Misc Improvements Value $2,195
Total Improvement Value $188,002

Assessed Land Value $70,000
   
Assessed Total Value $305,600



Addition Summary 
StoryTypeCodeArea
1.00 OPEN PORCH FIN OPF 299
1.00 GARAGE FINISH GRF 529
1.00 LOWER STY FIN LSF 676
 
Other Improvements 
UnitsDescriptionItemCodeYear% BadValue
17x26 DIMENSIONS CONCRETE PATIO 1983 65 1187
10x8 DIMENSIONS UTILITY FRAME 1990 65 900
4X10 DIMENSIONS SHELTER 1990 65 108
 


Building Sketch
Photograph
Building Sketch Building Photo
(Click sketch for bigger image)