Cumberland County
Building Summary

Data last updated on: 1/12/2026     Ownership current as of: 1/7/2026     Tax Year: 2026
REID 0426773799000

PIN # 0426-77-3799

Location Address Property Description
2203 ROLLING HILL RD BRIARWOOD HILLS LO:385 SE:07 PL:0039-0042
   
Property Owner Owner's Mailing Address
TULSIEDASS, JONATHAN;BROWN-PERRYMAN, REYANI
2203 ROLLING HILL ROAD
FAYETTEVILLE NC 28304
Parcel
Buildings
Misc Improvements
Land
Deeds
Documents
Notes
Sales
Sales Comparison
Photos
Building Location Address
2203 ROLLING HILL RD
Building Description
R1-SINGLE-FAMILY-RES
Card   of  1
Bldg Type R1-SINGLE-FAMILY-RES
Units 0
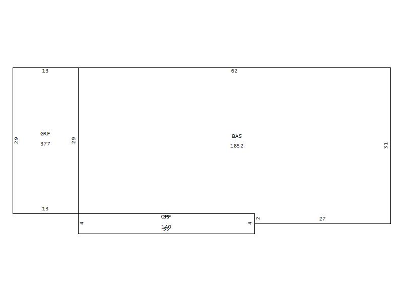
Living Area (SQFT) 1852
Number of Stories 1.00
Style 000002-STYLE
Foundation G-PIERS-W/CNTFWL
Frame CONSTANT
Exterior 12-BRICK/WOOD
Const Type
Heating M-07&S-01
Air Cond AC-Y
Plumbing Baths (Full):   2
Baths (Half):   0
Extra Fixtures:   0
Total Plumbing Fixtures:   6 
Bedrooms 3
Floor 11-CARPET-COMB
Roof Cover 03-COMP SHINGLE
Roof Type 02-GABLE
Main Body (SQFT) 1852
Year Built 1973
Additions 2
Effective Year 1973
Remodeled 0
Interior Adj.
Other Features
Building Total & Improvement Details

Grade 370 108%
Percentage Complete 100
Total Adjusted Replacement Cost New $231,786
Physical Depreciation (% Bad) A 33%
Depreciated Value $155,297
Economic Depreciation (% Bad) 0
Functional Depreciation (% Bad) 0
Total Depreciated Value $155,297
Market Area Factor 1.00
Building Value $155,297
Misc Improvements Value $3,751
Total Improvement Value $159,048

Assessed Land Value $70,000
   
Assessed Total Value $275,400



Addition Summary 
StoryTypeCodeArea
1.00 GARAGE FINISH GRF 377
1.00 OPEN PORCH FIN OPF 140
 
Other Improvements 
UnitsDescriptionItemCodeYear% BadValue
14x28 DIMENSIONS CONCRETE PATIO 1983 65 1052
12x20 DIMENSIONS UTILITY FRAME 1999 65 2699
 


Building Sketch
Photograph
Building Sketch Building Photo
(Click sketch for bigger image)